Galleria
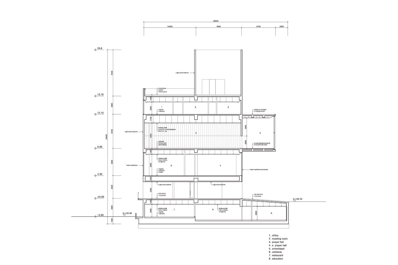
Nameless Architecture, RW Concrete Church, Byeollae, Corea del Sud. Pianta del piano terra
RW Concrete Church, Byeollae, Corea del Sud
Tipologia: chiesa
Architetti: Nameless Architecture
Architetti incaricati: Unchung Na, Sorae Yoo
Collaboratori: Jplus (Jungtaek Lim, Hwataek Jung)
Consulenti strutturali: Mido Structural Consultants
Consulenti meccanici: One Engineering
Committente: RockWon Church
Area: 3,095.5 mq
Completamento: 2013
