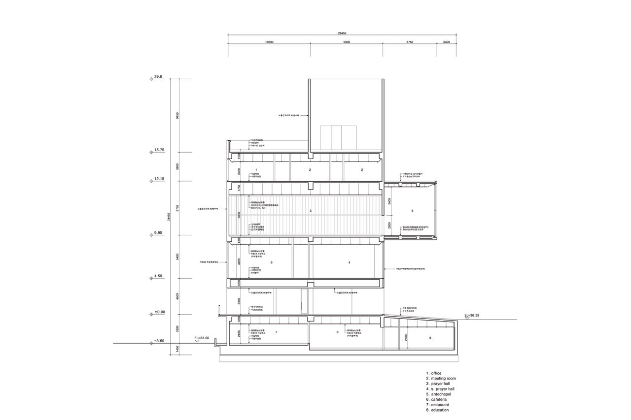
RW Concrete Church, Byeollae, South Korea
Program: church
Architect: Nameless Architecture
Architects in charge: Unchung Na, Sorae Yoo
Collaborating architect: Jplus (Jungtaek Lim, Hwataek Jung)
Structural consultant: Mido Structural Consultants
Mechanical consultant: One Engineering
Client: RockWon Church
Area: 3,095.5 sqm
Completion: 2013
