Galleria
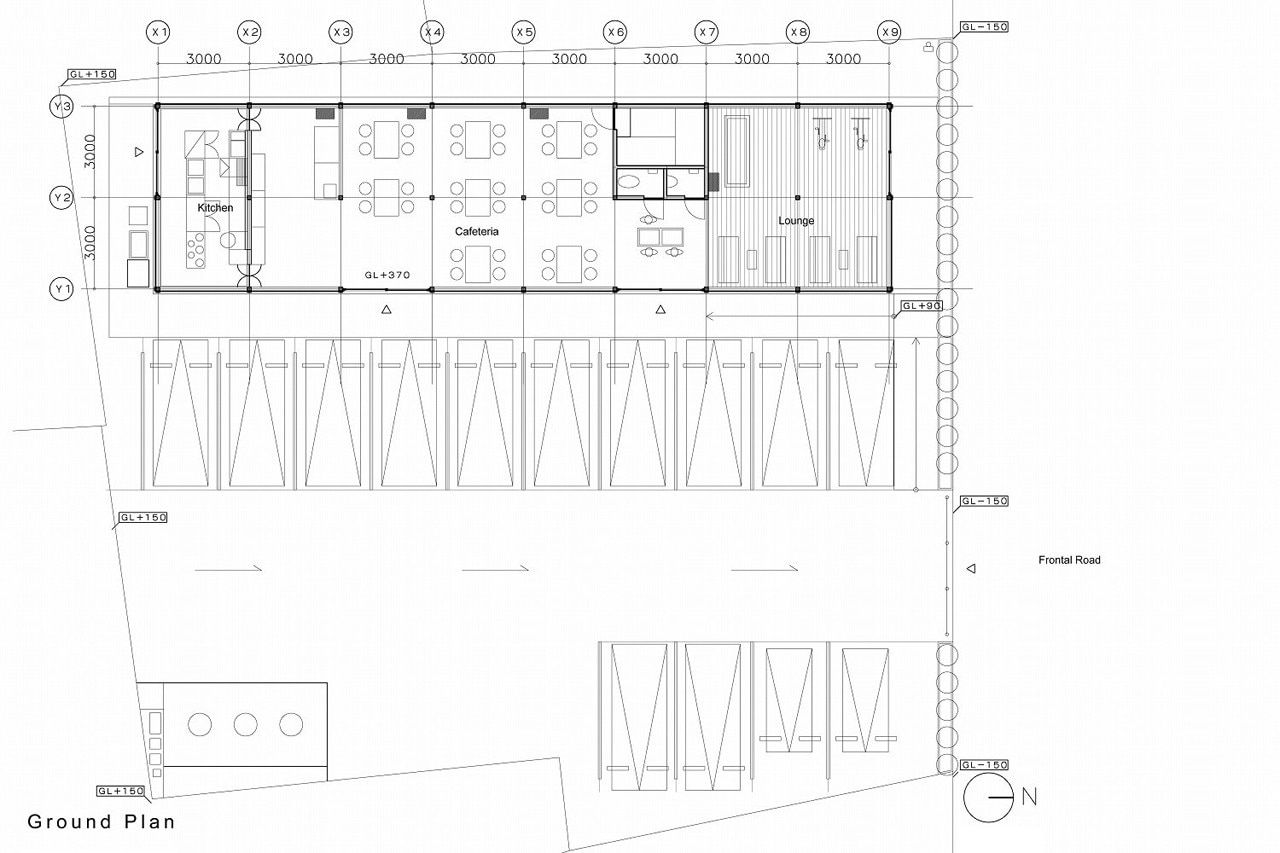
Niji Architects, AI Design, OHNO Japan, Caffetteria a Ushimado, Okayama, Giappone, pianta del piano terra
Caffeteria a Ushimado, Okayama, Giappone
Tipologia: mensa e caffetteria
Architetti: Niji Architects, AI Design, OHNO Japan
Area: 166 mq
Completamento: aprile 2013
