View gallery
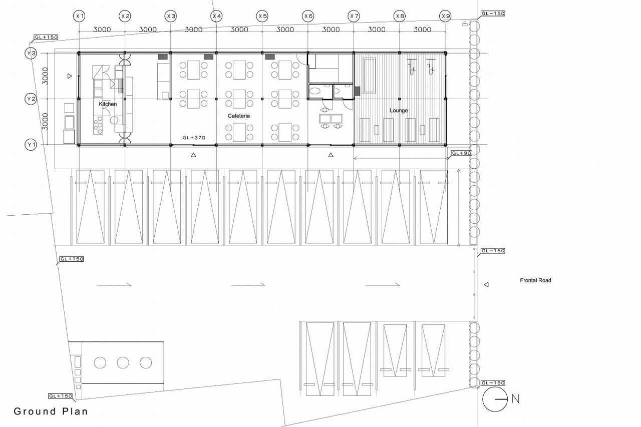
Niji Architects, AI Design, OHNO Japan, Cafeteria in Ushimado, Okayama, Japan, ground floor plan
Cafeteria in Ushimado, Okayama, Japan
Program: canteen and cafeteria
Architects: Niji Architects, AI Design, OHNO Japan
Area: 166 sqm
Completion: April 2013
