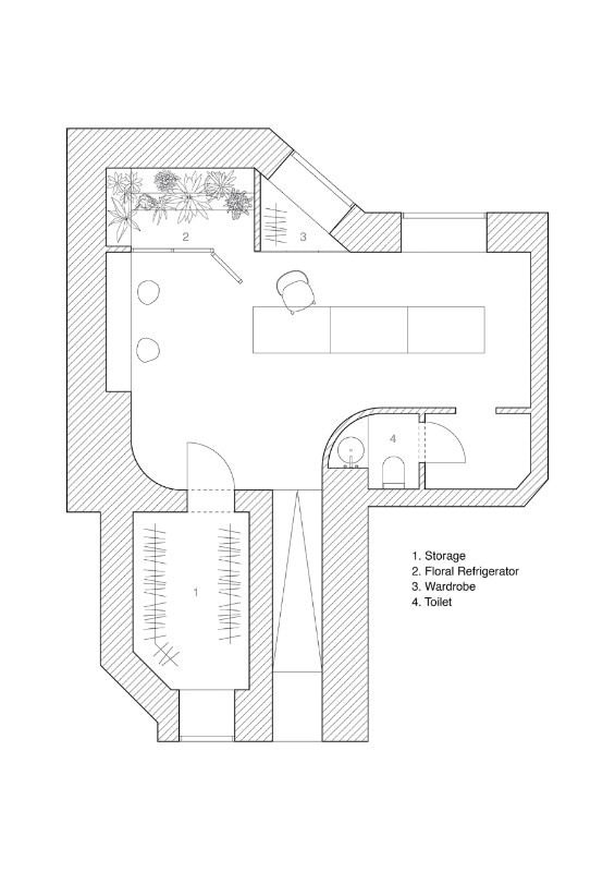
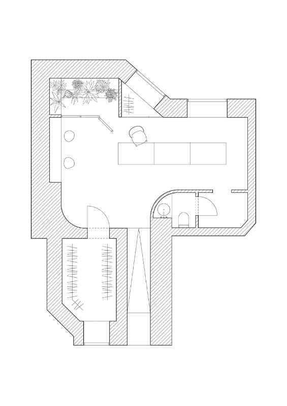
Se l’installazione delle opere d’arte nel“white cube” può avere stancato il mondo dell’arte, non è così nel nuovo mondo dei fiori. Infatti in Russia, a Rostov-on-Don, è stato aperto uno speciale negozio di fiori in un palazzo di epoca costruttivista progettato nel 1928 da Michail Kondratyev. Niente a che vedere con il classico negozio di fiori che profuma di Provenza, pieno di piante, illuminato da una luce naturale e corredato da panni di lino color limone. Guapa, questo è il nome del negozio russo progettato da Eduard Eremchuk, è una boutique minimal, interamente bianca, la cui illuminazione proviene dal soffitto ed è futuristica, tutt’altro che naturale, si ispira a Kubrick, “2001: Odissea nello spazio”. Di “dotazione” c’è solo una finestra, quindi l’illuminazione è soprattutto una buona scelta stilistica per fronteggiare la scarsa luce. Questo interno rappresenta una nuova ondata di design russo che si sposa col contesto della storia sovietica. Le pareti curve sono un richiamo all’esterno, creano un trait d’union visivo e storico tra l’interno e l’esterno. L’impatto all’occhio è infatti minimal e geometrico, la luce intensa e fredda. Un bancone argentato divide lo spazio privato dove vengono realizzati i bouquet da quello pubblico, dove l’avventore può aspettare i fiori leggendo riviste di arte e di design. Guapo, di nome e di fatto.
Galleria
- Nome:
- Negozio di fiori
- Architettura:
- Eduard Eremchuk
- Luogo:
- Russia, Rostov-on-Don
- Spazio:
- 43 mq
- Fotografia:
- Inna Kablukova
- Completamento :
- 2018
