Studio di progettazione: QB Atelier
Nome del progetto: Casa PSD
Luogo: Lendinara, Rovigo, Italia
Dimensioni: 300 mq (abitazione), 100 mq (giardino)
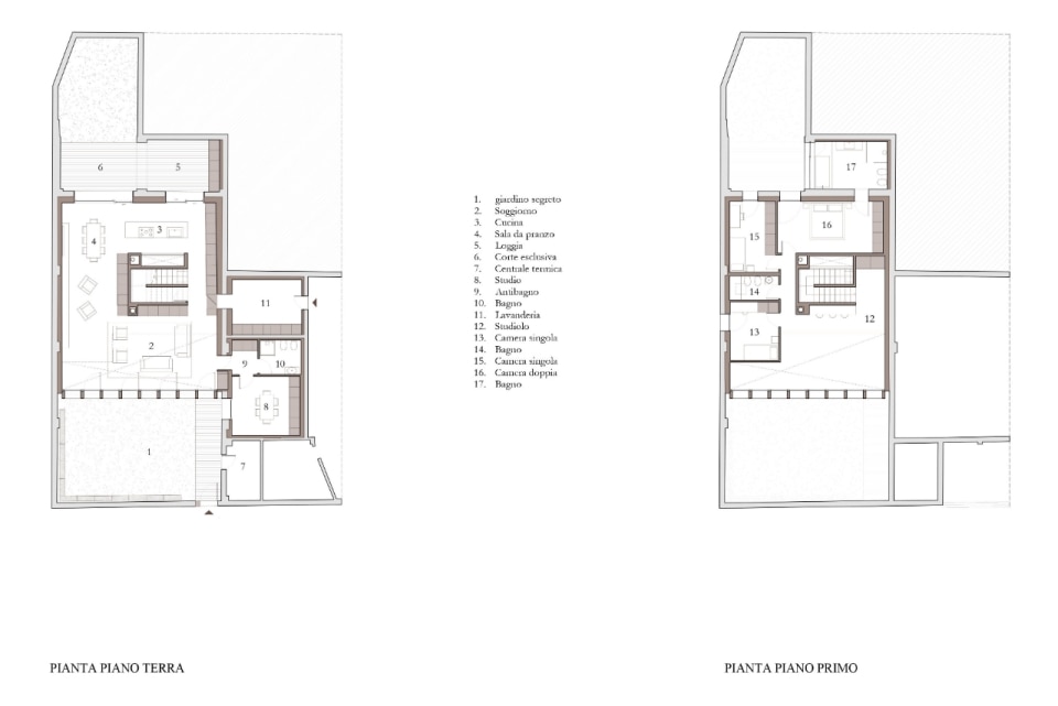
In un contesto residenziale punteggiato da memorie industriali, QB Atelier ha recuperato un ex opificio novecentesco, trasformandolo in un’abitazione. Il progetto ha conservato il complesso esistente, una “scatola” muraria caratterizzata da una morfologia eterogenea e priva di aperture verso la città, mantenendone il fronte a doppia capanna sulla piazza. All’interno, il volume è scavato per ricavare un "hortus conclusus" che offre al corpo arretrato della casa, invisibile dalla strada, un nuovo affaccio verso l’esterno, con maggiore luce e ventilazione naturali. Interfaccia tra lo spazio domestico e il giardino è un'altissima parete vetrata con struttura in legno e acciaio, che ripete in sommità il profilo industriale del muro su strada e introietta nel soggiorno a doppia altezza le sagome di un paesaggio urbano “segreto”, che muta al variare delle stagioni.
