Design firm: QB Atelier
Project name: PSD House
Location: Lendinara, Rovigo, Italy
Size: 300 sqm (house), 100 sqm (garden)
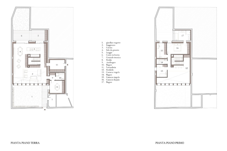
Set in an area dotted with industrial landmarks, QB Atelier has restored a former factory, transforming it into a home. The project has preserved the existing complex — a masonry “box” characterised by a heterogeneous morphology with no openings towards the city — while maintaining its double-pitched roof facing the square. Inside, the interior has been hollowed out to create a “hortus conclusus” offering the rear part of the house, which is invisible from the street, a new perspective on the outside with increased natural light and ventilation. The interface between the domestic space and the garden is a very tall glass wall with a wooden and steel structure that repeats the industrial profile of the street wall at the top. This introduces the silhouettes of a “secret” urban landscape that changes with the seasons into the double-height living room.
