Il Comune di Moncenisio ha affidato al Politecnico di Torino (Antonio De Rossi, Laura Mascino e Matteo Tempestini) e allo studio torinese Coutan Architects (Edoardo Schiari e Maicol Guiguet) il compito di riadattare e reinventare gli spazi di due vecchie caserme, un tempo sede dell’ultimo presidio territoriale della Guardia di Finanza, trasformandole in un simbolo di rinascita per la montagna contemporanea.
Siamo nelle Alpi piemontesi della Val Cenischia, sul confine tra Italia e Francia: on un budget contenuto e un approccio low-tech, il progetto ha cercato l’essenza della montagna, intrecciando la memoria delle antiche mura in pietra con nuove strutture in legno che si inseriscono all’interno.
Un approccio grazie al quale oggi le caserme rinate figurano tra i finalisti dell'edizione 2025 del Wood Architecture Prize di Klimahouse.
La più grande delle due caserme, vincolata da limiti idrogeologici che ne impediscono l’abitabilità, diventerà un recinto dedicato alla cultura: uno spazio per eventi e un giardino alpino che celebra la biodiversità del territorio.
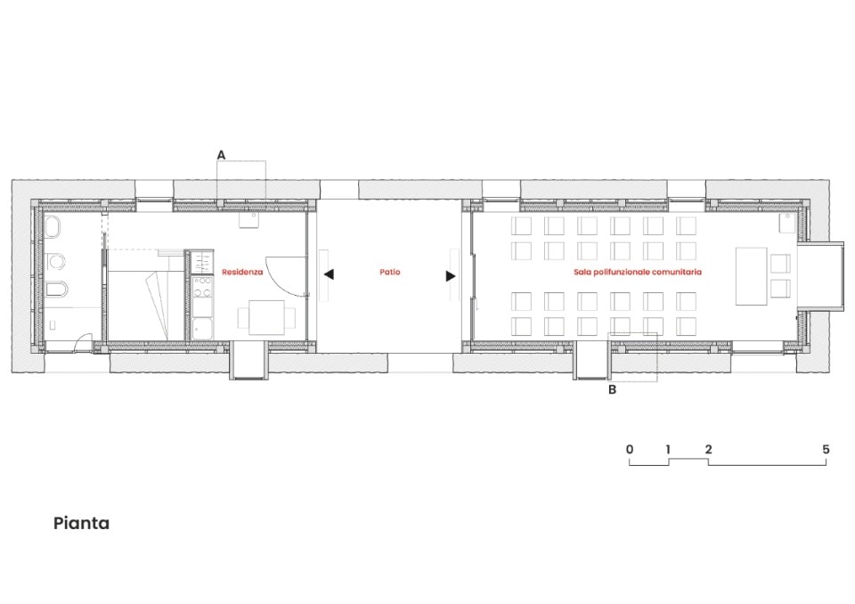
La più piccola, invece, accoglierà due “scatole” lignee contenenti un piccolo appartamento per artisti di passaggio e una sala polifunzionale destinata alla comunità. In queste scelte si legge una visione: quella di un tentativo di ripopolare le terre alte – Moncenisio conta appena cinquanta abitanti – che non rincorre nostalgie, ma costruisce nuovi e inediti legami tra abitanti, visitatori e il paesaggio.
Il dialogo tra passato e presente si manifesta con forza nell’architettura. Le nuove strutture in legno, realizzate internamente in abete e rivestite esternamente in larice – compresa la copertura, per resistere alle intemperie – si presentano come volumi essenziali, simili a case stilizzate disegnate dalla mano di un bambino.
Questo design semplice e puro esalta il contrasto con la ruvidità degli spessi muri, sedime delle vecchie casermette, ora visibili come frammenti sezionati che raccontano il tempo. Il legname utilizzato, proveniente interamente dalla Val di Susa, è una dichiarazione d’intenti: questa filiera corta, che privilegia l’uso di risorse locali, si inserisce in una più ampia riflessione sulla sostenibilità. L’architettura alpina diventa così uno strumento di cura del territorio, un tema centrale nella trentennale carriera di progettista di Antonio De Rossi.
"Il processo virtuoso a cui abbiamo partecipato a Moncenisio è solo l’ultimo tassello di un lavoro di rigenerazione concreta che, come Politecnico, stiamo portando avanti in diverse comunità delle Alpi e dell’Appennino”, ha raccontato De Rossi. “Le competenze dell’Ateneo, insieme all’impegno delle amministrazioni e degli attori locali, possono dare vita a progetti davvero innovativi per le aree interne e montane del paese. E la qualità dell’architettura, con il suo supporto alle nuove economie e culture della montagna, può essere determinante”.
In questo piccolo ma significativo intervento, Moncenisio diventa il simbolo di una nuova architettura alpina radicata al contesto, capace di parlare al territorio e alla sua gente. Il restauro non è solo un progetto di riqualificazione, ma un invito a riscoprire il valore della montagna come spazio di dialogo, espresso anche in un modo diverso di abitare le sue terre alte.
