Domaine Public Architects ha progettato la sede centrale della Lebanese Swiss Bank a Tiro, città situata lungo la costa meridionale del Libano. Nei primi anni Novanta, in seguito alla guerra civile libanese, la città ha visto un abbandono degli spazi pubblici e un’espansione urbana incontrollata favorita dai regolamenti edilizi del periodo.
LSB Regional Headquarters si colloca in un’area agricola libera che sarà oggetto di sviluppi futuri: una responsabilità per lo studio con base a New York e Beirut, che con questo progetto ha la possibilità di proporre per la zona un nuovo modello progettuale che valorizza gli spazi pubblici. L’edificio si bilancia tra una grande visibilità – richiesta dal cliente – e una presenza fisica minima.
La struttura, distribuita su tre piani, è caratterizzata da uno sbalzo di nove metri che libera il piano terra dagli elementi strutturali e crea una piazza pubblica ombreggiata destinata alla comunità. Gli spazi interni ed esterni sono in continuo dialogo: se la facciata curva crea un legame con lo spazio all’aperto, la corte trapezoidale interna favorisce una connessione visiva con gli uffici.
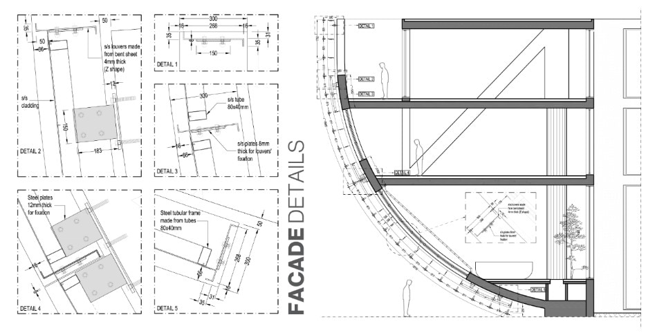
LSB è realizzata principalmente in cemento e il suo volume a sbalzo, orientato a sud, ottiene il massimo irraggiamento solare in inverno e limita il calore in estate. Questo avviene grazie alla presenza di una seconda pelle di acciaio che protegge le vetrate e serve da frangisole, alleggerendo al tempo stesso la struttura principale.
- Progetto:
- LSB Regional Headquarters
- Luogo:
- Tiro, Libano
- Programma:
- Uffici, spazi pubblici
- Architetti:
- Domaine Public Architects
- Capo progetto:
- Karim Fakhry, Jean Nmeir
- Design team:
- Karim Fakhry, Jean Nmeir, Abeer Fanous, Dragan Vukovic, Rami Khoueiry
- Ingegneria strutturale:
- BEATEC
- Ingegneria elettro-meccanica:
- WTA MEP Engineers
- Paesaggio:
- Domaine Public Architects
- Fornitori:
- ACID – Facciata in acciaio inossidabile
- Contractors:
- Ashada
- Cliente:
- Lebanese Swiss Bank
- Budget:
- $ 2,5 milioni
- Completamento:
- 2020
