Galleria
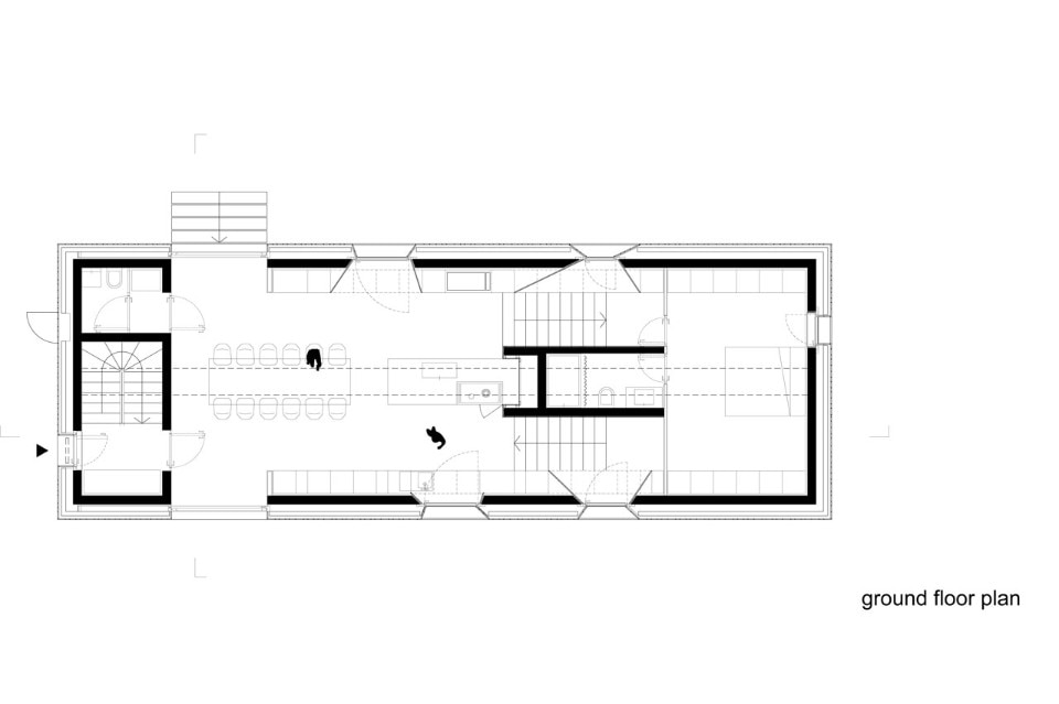
La cucina, con una stufa a legna multifunzionale, svolge un ruolo fondamentale nella vita privata e sociale della casa. La posizione centrale del camino ha ispirato il concept del progetto, determinando l’allineamento centralizzato degli spazi, se visti in sezione. La linea di colmo del tetto è stata rimossa per creare un lucernario continuo che attraversa il volume dell’intera casa e fornisce luce zenitale per gli spazi più importanti. Posizionata sul confine del villaggio, la struttura si riferisce chiaramente al fienile di legno adiacente grazie alla matericità scura del legno, ma con una nuova identità volumetrica che si allontana dal suo vicino vernacolare e, paradossalmente, assomigliando di più alla chiesa vicina del XVI secolo.
Galleria
Casa Camino, Logatec, Slovenia
Tipologia: casa unifamiliare
Architetti: Dekleva Gregorič Architects
Team di progetto: Aljoša Deklev, Tina Gregorič, Vid Zabel, Primož Boršič
Area: 830 mq
Area costruita: 145 mq
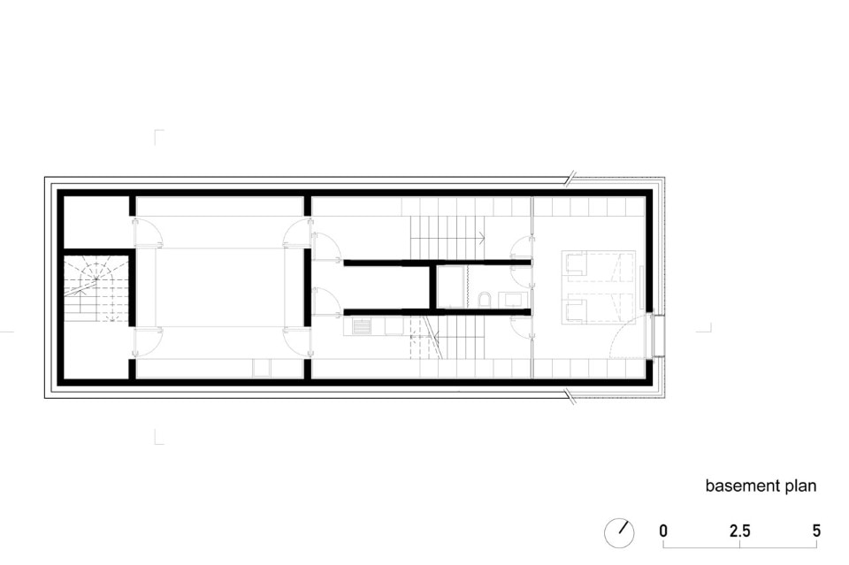
Superficie: 205 mq (106 mq piano terra, 99 mq piano interrato)
Completamento: 2016
