Galleria
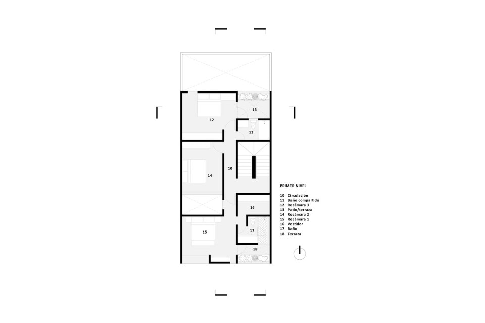
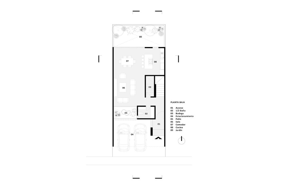
Il piano terra ospita le zone comuni della casa. Gli architetti messicani hanno quindi eliminato le pareti per creare spazi continui e ambienti ampi che interagiscono con gli spazi aperti. La superficie abitabile è ottimizzata eliminando corridoi inutili. Al secondo piano, le aperture verticali e le terrazze sfruttano la mutevole luce del sole durante tutta la giornata. Una delle aperture permette la creazione di un piccolo patio in cui si incontrano diversi elementi: fioriere d’acciaio, mattoni rossi e vegetazione. Questo patio entra in relazione con diversi ambienti della casa.
Casa Montesierra 025 House, Puebla, Messico
Tipologia: casa unifamiliare
Architettura: Espacio 18 Arquitectura
Team di progetto: Carla Osorio Jiménez, Mario Alberto Ávila López
Superficie: 225 mq
Completamento: 2017
