Galleria
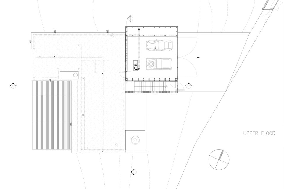
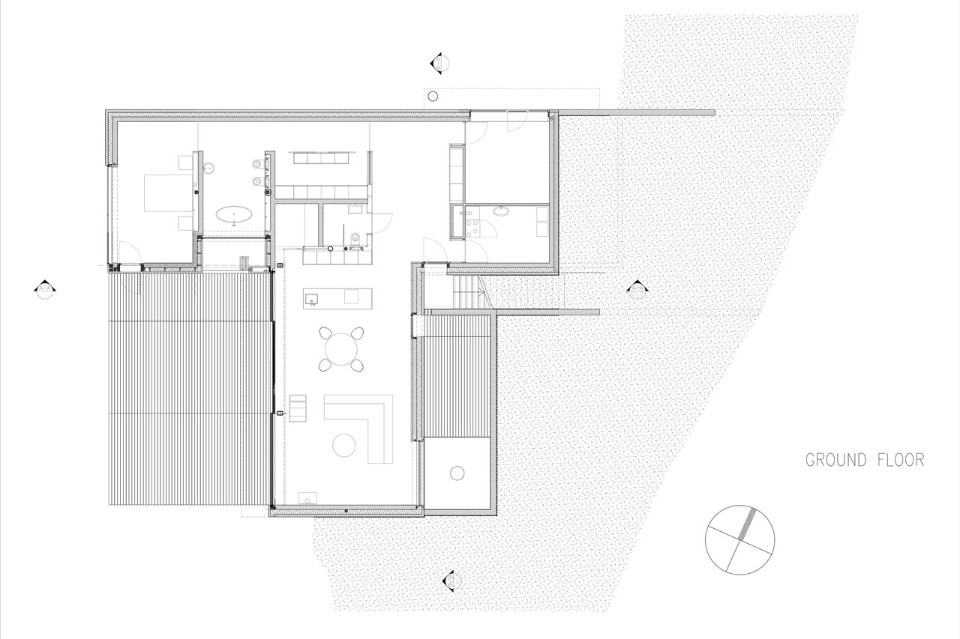
La forma dell’abitazione assomiglia alla lettera “T”. In una delle ali si trovano soggiorno, sala da pranzo e la cucina aperta al parco circostante. La seconda ala è perpendicolare e parzialmente interrata, con locali tecnici e una piccola camera per gli ospiti. L’ultimo braccio contiene la camera da letto principale, con bagno e cabina armadio. La composizione della residenza ha prermesso di ottenere uno spazio aperto riservato. Per catturare il sole in salotto è stato progettato un piccolo patio che si affacia sulla finestra del soggiono; la parete del patio serve allo stesso tempo come sostegno della zona in pendenza.
Casa JRv2, Poznań, Polonia
Tipologia: casa unifamiliare
Architect: Studio de.materia – Adam Wysocki
Superficie: 230 mq
Completamento: 2017
