Galleria
Bernard Desmoulin Architecte, Sala conferenze su un lago, Le Vaumain, Francia, 2016. Photo François Delebecque
Bernard Desmoulin Architecte, Sala conferenze su un lago, Le Vaumain, Francia, 2016. Photo François Delebecque
MDF_PRO-DCE_CARNET DETAILS_Ind.B_2015 12 23.pdf
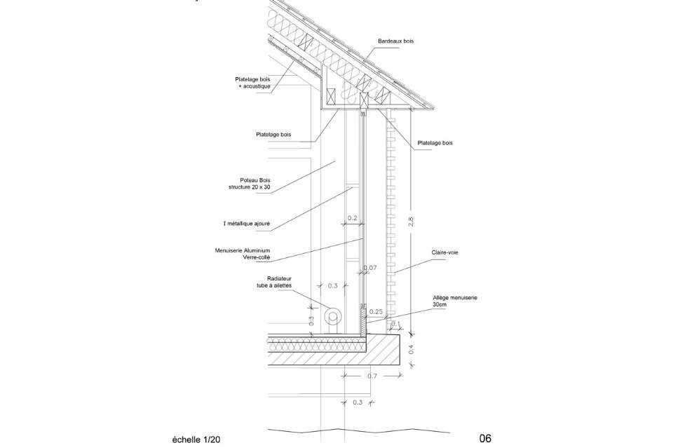
Bernard Desmoulin Architecte, Sala conferenze su un lago, dettaglio
La forma della struttuta ricorda un’architettura vernacolare e senza tempo, usando il linguaggio familiare di una casa di pescatori. Anche la scelta dei materiali va in questa direzione. All’interno, le grandi finestre panoramiche offrono la vista dello splendido paesaggio lacustre, invitando ad ammirare i pioppi e i colori riflessi sulla superficie del lago. La struttura modesta rende omaggio alla bellezza che la circonda e di cui prova a far parte.
Sala conferenze su un lago, Le Vaumain, Francia
Tipologia: sala conferenza
Architetto: Bernard Desmoulin Architecte
Committente: Sci des Brumes
Area: 300 mq
Completamento: 2016
