View gallery
Bernard Desmoulin Architecte, Conference room on a lake, Le Vaumain, France, 2016. Photo François Delebecque
Bernard Desmoulin Architecte, Conference room on a lake, Le Vaumain, France, 2016. Photo François Delebecque
MDF_PRO-DCE_CARNET DETAILS_Ind.B_2015 12 23.pdf
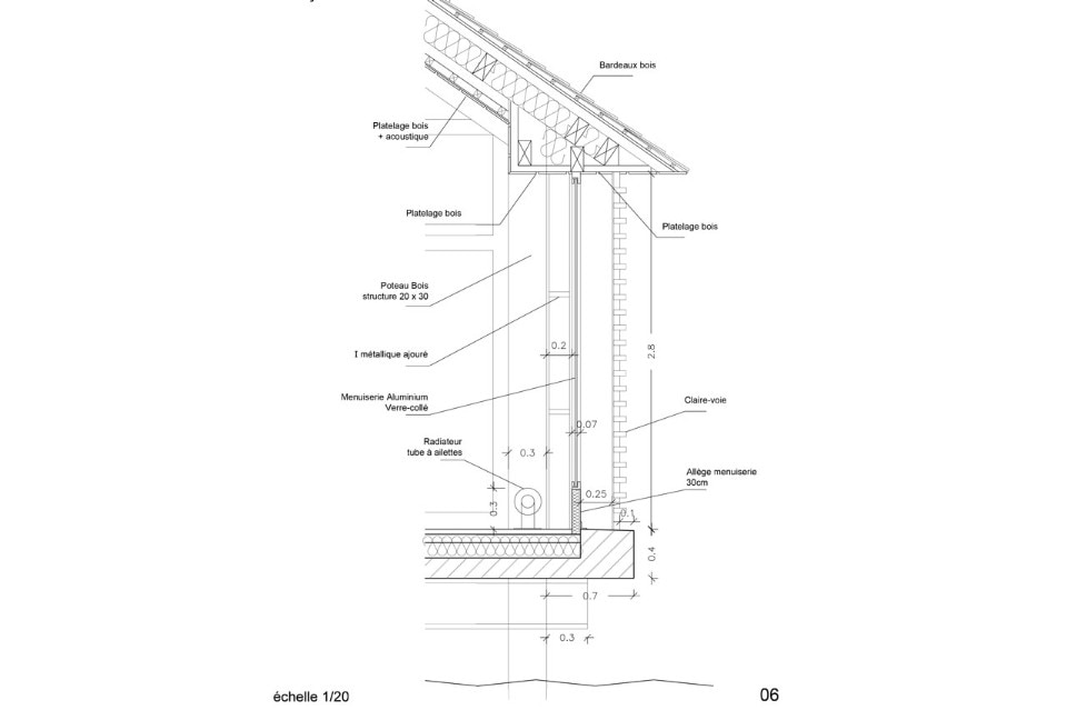
Bernard Desmoulin Architecte, Conference room on a lake, detail
Its shape reminds of timeless vernacular architecture, using the familiar language of a fisherman’s house on slits. Just like the choice of the materials. Inside, the large windows offer an inspiring panorama, inviting to contemplate the grace of the landscape with its huge poplar trees and all the colors reflecting on the lake’s surface. This humble conference room stands back, and by doing so pays a tribute to the natural beauty surrounding it, beauty that has become a part of it.
Conference room on a lake, Le Vaumain, France
Program: conference hall
Architect: Bernard Desmoulin Architecte
Client: Sci des Brumes
Area: 300 sqm
Completion: 2016
