Galleria
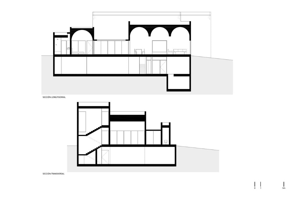
Introversa rispetto all’intorno, la casa sfrutta però la sua posizione privilegiata di contiguità a un parco pubblico. In contrasto con l’ortogonalità del piano, la sezione all’interno ha diverse forme, con variazioni di scala, gerarchia e intimità degli spazi. L’uso dei materiali è grezzo e onesto, sia nel sistema costruttivo sia nelle finiture.
Casa Acolhúas, Guadalajara
Tipologia: casa unifamiliare
Architetto: SPRB arquitectos – Laura Sánchez Penichet, Carlos Rodríguez Bernal
Collaboratori: Ricardo Valdivia, Orlando Quintero, Cécile Bernicot, Víctor Tomás, Christina Gonnsen, Alberto Capilla
Costruzione: Jaime Velasco, Ismael Correa
Superficie: 980 mq
Completamento: 2016
