Galleria
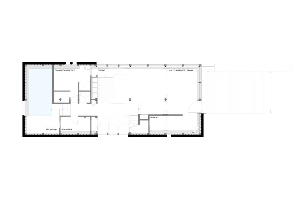
L’edificio esistente è il punto di partenza per strutturare la nuova residenza. Dall’esterno rimane parzialmente visibile, sotto l’involucro di zinco, conferendo un aspetto incompleto alla costruzione, che sembra essere stata erosa dalla natura circostante. Le aperture sono visualmente nascoste, è stata mantenuta la forma archetipa di casa per creare un nuovo habitat, più in linea con la campagna circostante. Una sola “crepa” attraversa il tetto e i muri e dà al progetto l’aspetto di una rovina contemporanea.
Il fienile, Notre-Dame-de-Bliquetuit, Francia
Tipologia: casa unifamiliare
Architetto: Antonin Ziegler Architecte
Superficie: 217 mq
Completamento: 2016
