Galleria
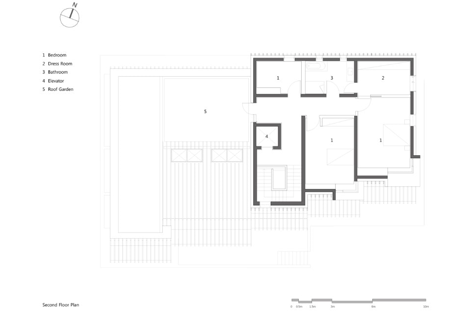
Un’altra caratteristica importante della Deep House è la presenza di finestre d’angolo. Una volta distribuite le camere, i loro angoli sono stati aperti con delle finestre profonde, che sono dei piccoli volumi indipendenti. Le camere e le finestre d’angolo sono state disposte strategicamente per avere la vista sul paesaggio, riducendo al minimo gli impatti sull’isolamento termico.
Deep House, Seul, Corea del Sud
Tipologia: casa unifamiliare
Architetto: poly.m.ur – Homin Kim
Team di progetto: Sunki Hwang, Hyunju Lim
Strutture: Thekujo
Impianti: Woojin Mechanical Engineering Consultant / Jisung Consultant
Costruzione: Ean R&C
Superficie: 647,71 mq
Completamento: 2016
