View gallery
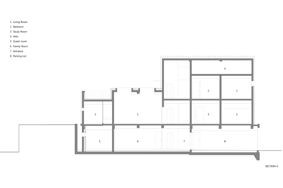
Another noticeable feature of the Deep House is its use of corner windows. Once the layout of the rooms was confirmed, corners of the rooms were left exposed by installing box-type windows. Rooms and the size of corner windows were strategically laid out to allow maximum benefit of the spectacular scenery from inside while minimizing adverse impact of chilly winter draft.
Deep House, Seoul, South Korea
Program: single family house
Architect: poly.m.ur – Homin Kim
Design team: Sunki Hwang, Hyunju Lim
Structural engineering: Thekujo
Installations: Woojin Mechanical Engineering Consultant / Jisung Consultant
Contractor: Ean R&C
Area: 647,71 sqm
Completion: 2016
