Galleria
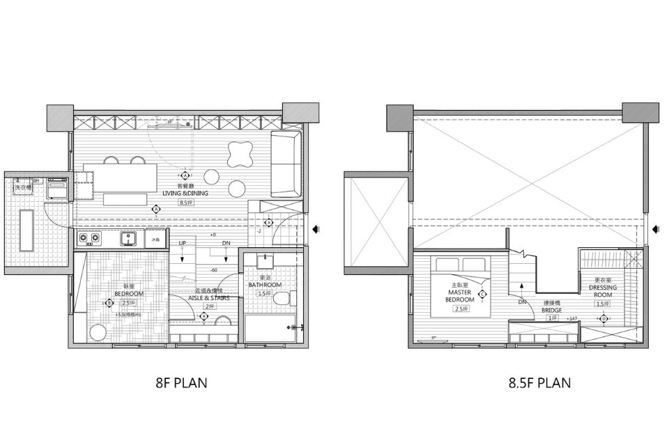
I progettisti hanno creato ambienti piacevoli e confortevoli per gli inquilini della casa, lavorando sulla originale connessione delle diverse stanze. La scala si combina al corridoio, al soppalco e alla cabina armadio, formando il nucleo centrale dell’abitazione. In questo modo gli ambienti minuti sono efficienti e funzionali. Pur mantenendo la privacy della camera matrimoniale, i progettisti hanno creato una connessione visiva con la zona giorno e la sala da pranzo con una sottile finestra ad angolo.
Casa Hu, Kaohsiung, Taiwan
Tipologia: appartamento
Architetto: HAO Design
Superficie: 40 mq
Completamento: 2017
