Galleria
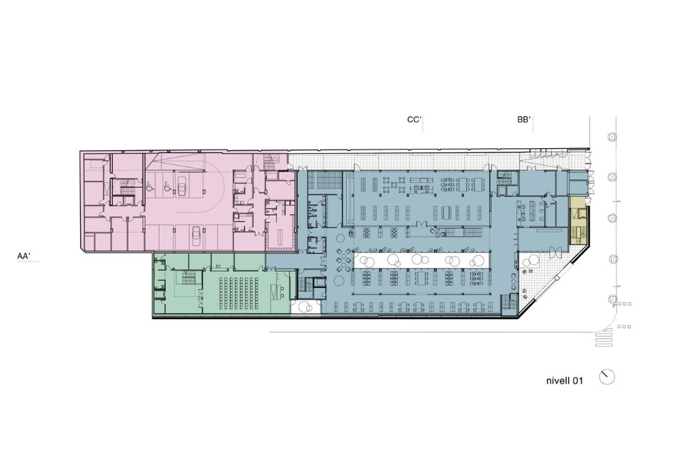
Alchemika Facilities Complex, Camp de l’Arpa, Barcellona
Tipologia: ristrutturazione e ampliamento di un centro multiculturale
Architetti: Oliveras Boix Arquitectes
Ingegneria strutturale: BOMA, Anabel Lázaro
Ingegneria dei servizi: JG Ingenieros
Illuminazione: Artec 3
Facciata: Ferrés Arquitectes
Paesaggio: Elena Mostazo
Segnaletica: Cómo Design
Completamento: 2016
