Galleria
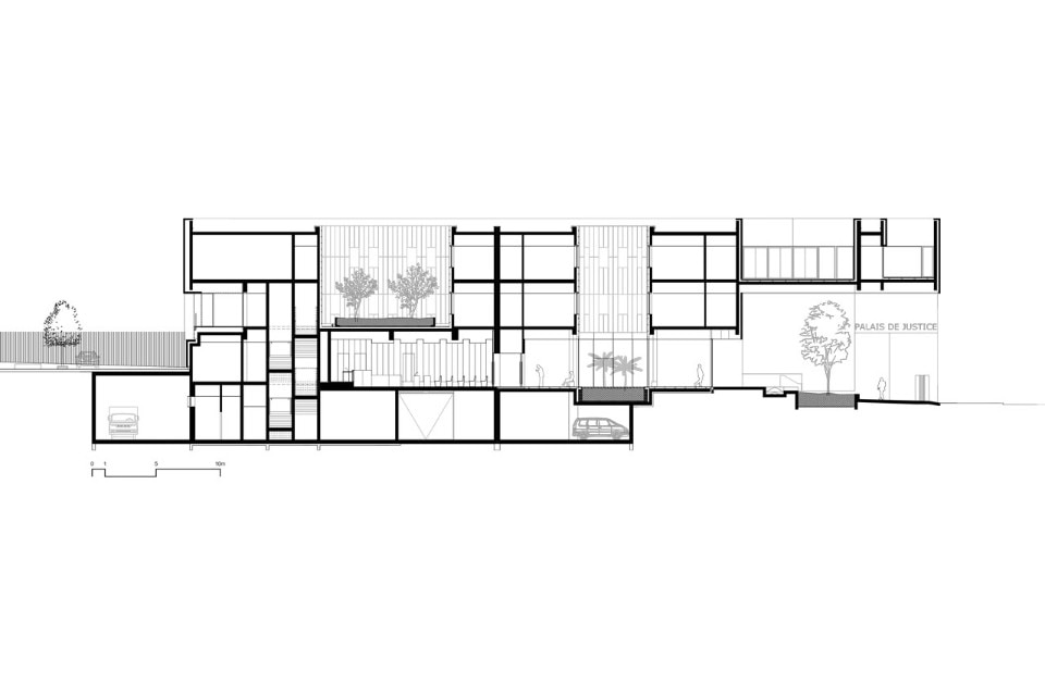
Palais de Justice - Béziers - 234 Architecture
Ateliers 2/3/4/, Palazzo di giustizia, Béziers, Francia, 2016
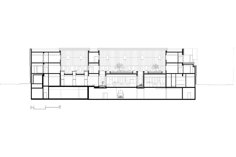
Palais de Justice - Béziers - 234 Architecture
Ateliers 2/3/4/, Palazzo di giustizia, Béziers, Francia, 2016
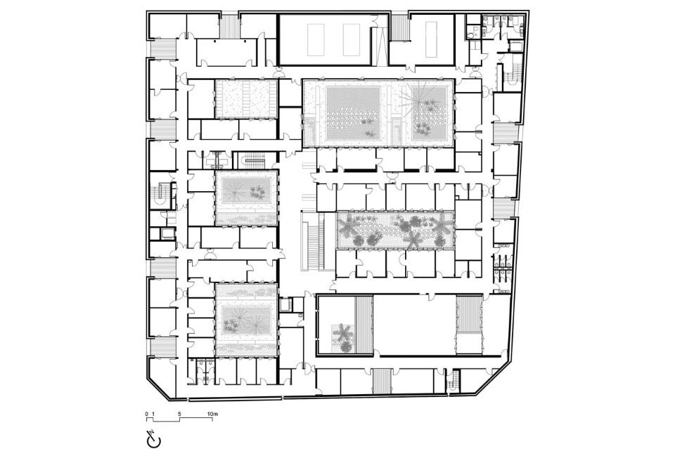
Palais de Justice - Béziers - 234 Architecture
Ateliers 2/3/4/, Palazzo di giustizia, Béziers, Francia, 2016
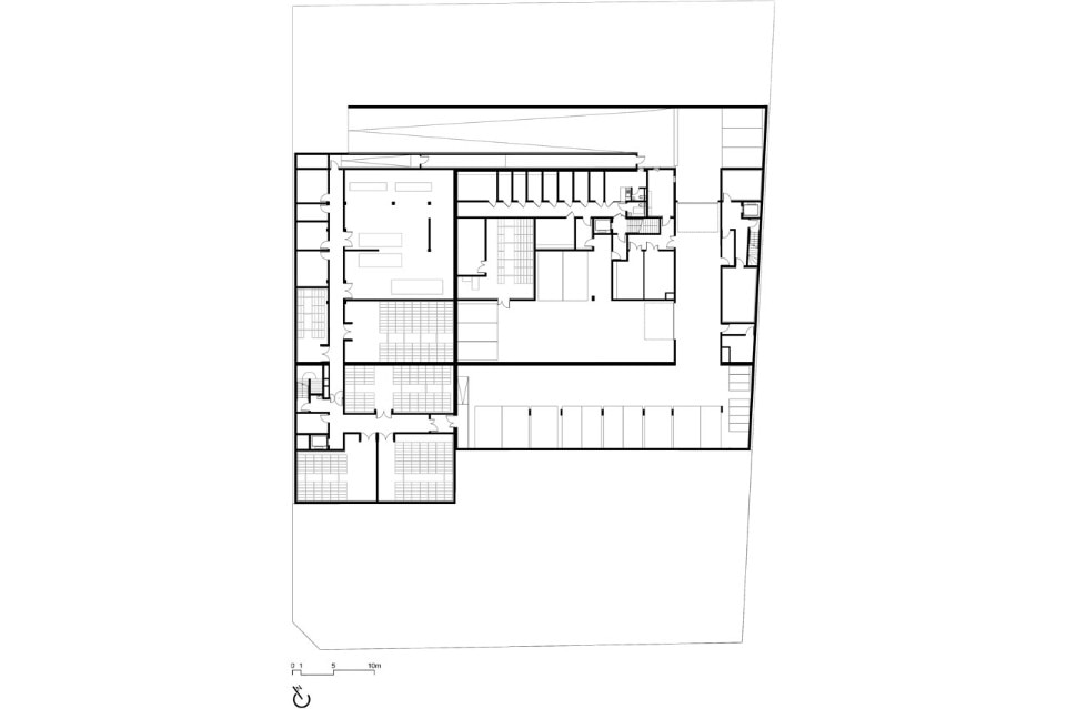
Palais de Justice - Béziers - 234 Architecture
Ateliers 2/3/4/, Palazzo di giustizia, Béziers, Francia, 2016
Palais de Justice - Béziers - 234 Architecture
Ateliers 2/3/4/, Palazzo di giustizia, Béziers, Francia, 2016
Palazzo di giustizia, Béziers, France
Tipologia: palazzo di giustizia
Architetti: Ateliers 2/3/4/
Team di progetto: Christine Edeikins, Sylvain Rety, Camille Etivant, Louis Gilbert, Franck Tillequin, Cristina Sanchez
Ingegneria: CET, Frédéric Ménière
Paesaggio: Tournesol, Francis Farges
Superficie: 8.057 mq
Completamento: 2016
