View gallery
Palais de Justice - Béziers - 234 Architecture
Ateliers 2/3/4/, Courthouse of Béziers, France, 2016
Palais de Justice - Béziers - 234 Architecture
Ateliers 2/3/4/, Courthouse of Béziers, France, 2016
Palais de Justice - Béziers - 234 Architecture
Ateliers 2/3/4/, Courthouse of Béziers, France, 2016
Palais de Justice - Béziers - 234 Architecture
Ateliers 2/3/4/, Courthouse of Béziers, France, 2016
Palais de Justice - Béziers - 234 Architecture
Ateliers 2/3/4/, Courthouse of Béziers, France, 2016
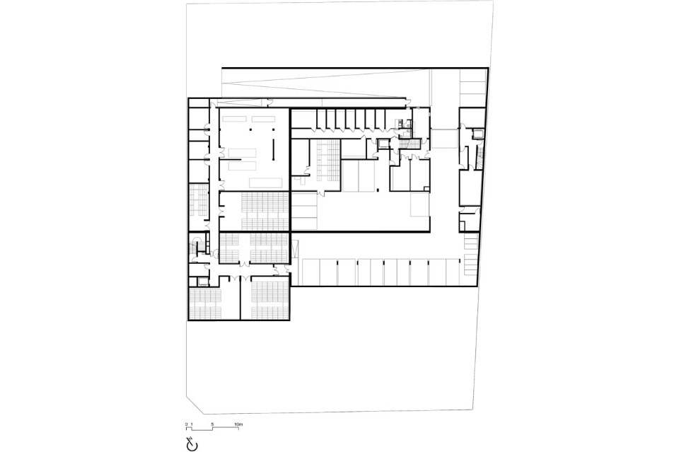
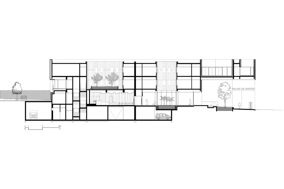
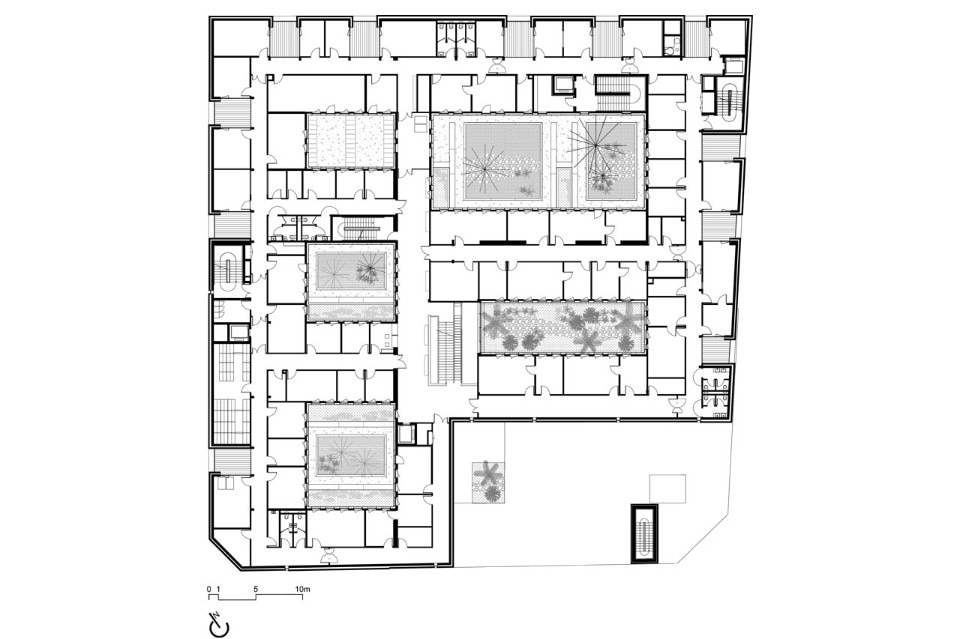
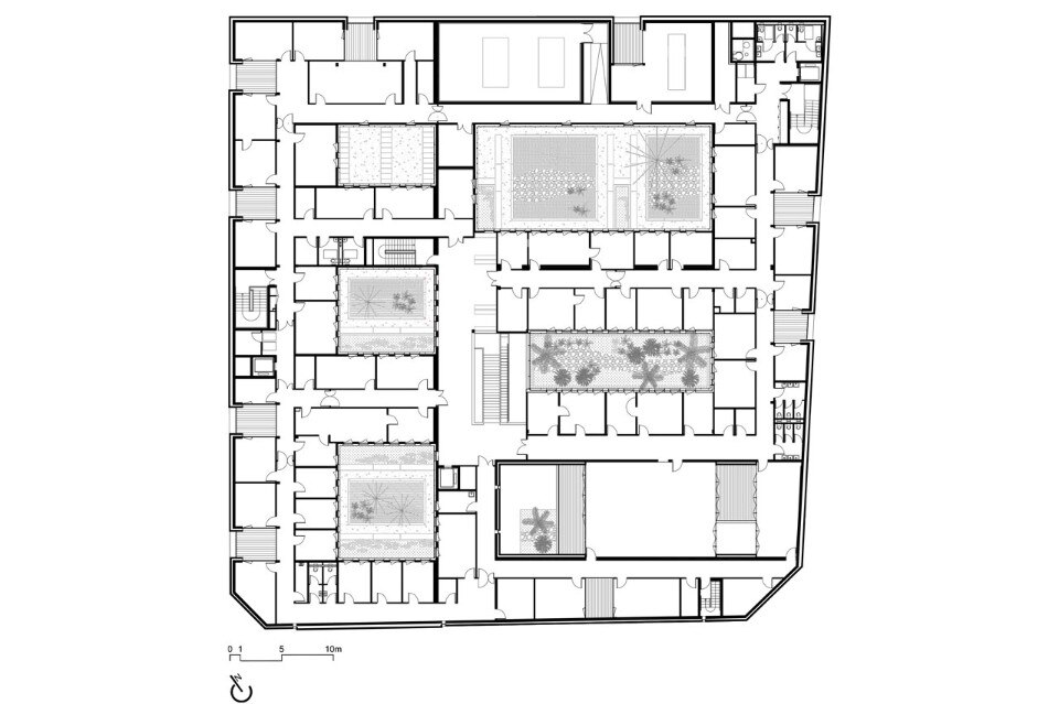
Courthouse of Béziers, France
Program: courthouse
Architect: Ateliers 2/3/4/
Design team: Christine Edeikins, Sylvain Rety, Camille Etivant, Louis Gilbert, Franck Tillequin, Cristina Sanchez
Engineering: CET, Frédéric Ménière
Landscape designer: Tournesol, Francis Farges
Area: 8,057 sqm
Completion: 2016
