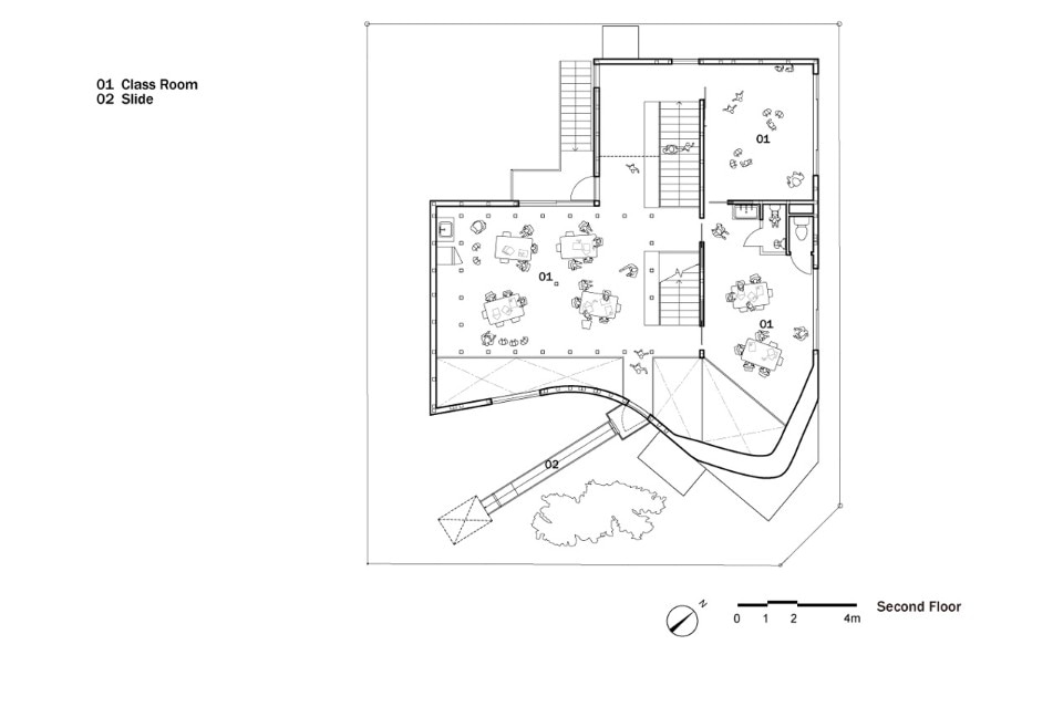
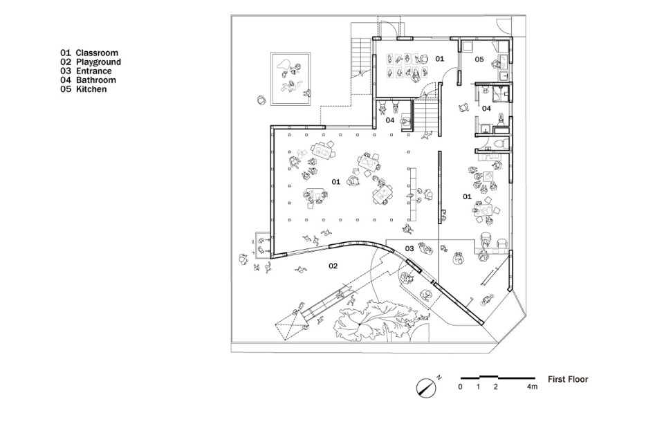
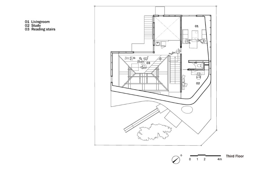
Le finestre hanno forme geometriche semplici e facilmente riconoscibili dai bambini, permettendo alla luce naturale di creare giochi d’ombra sempre diversi e stimolare la curiosità e l’immaginazione dei piccoli studenti.
Galleria
Clover House, Okazaki, Giappone
Tipologia: asilo, casa unifamiliare
Architetti: MAD Architects (Ma Yansong, Yosuke Hayano, Dang Qun)
Team di progetto: Takahiro Yonezu, Yukan Yanagawa, Hiroki Fujino, Julian Sattler, Davide Signorato
Strutture: Takuo Nagai
Costruzione: Kira Construction Inc
Superficie: 300 sqm
Completamento: 2016
