Galleria
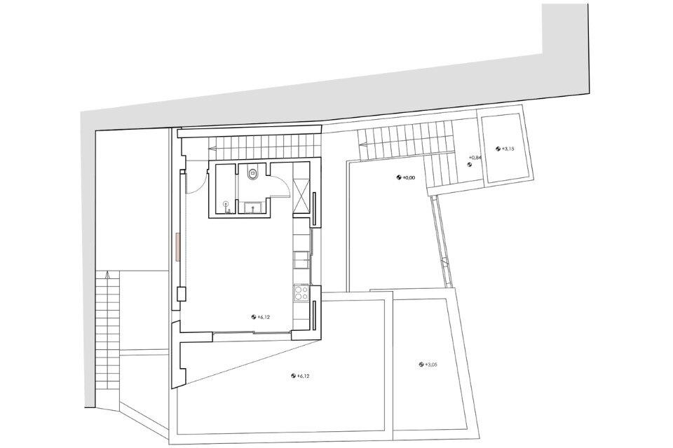
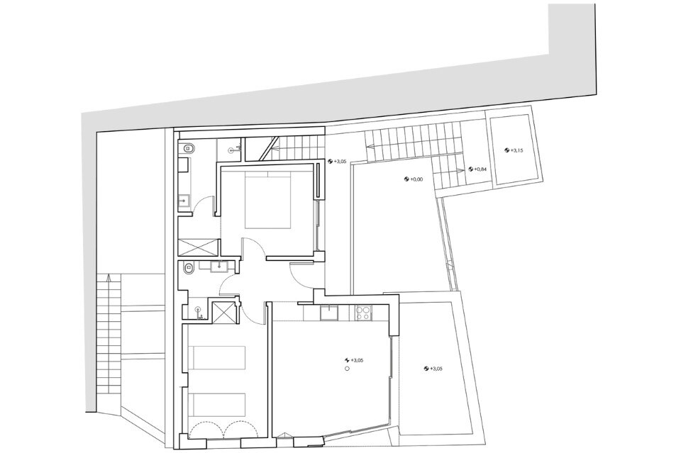
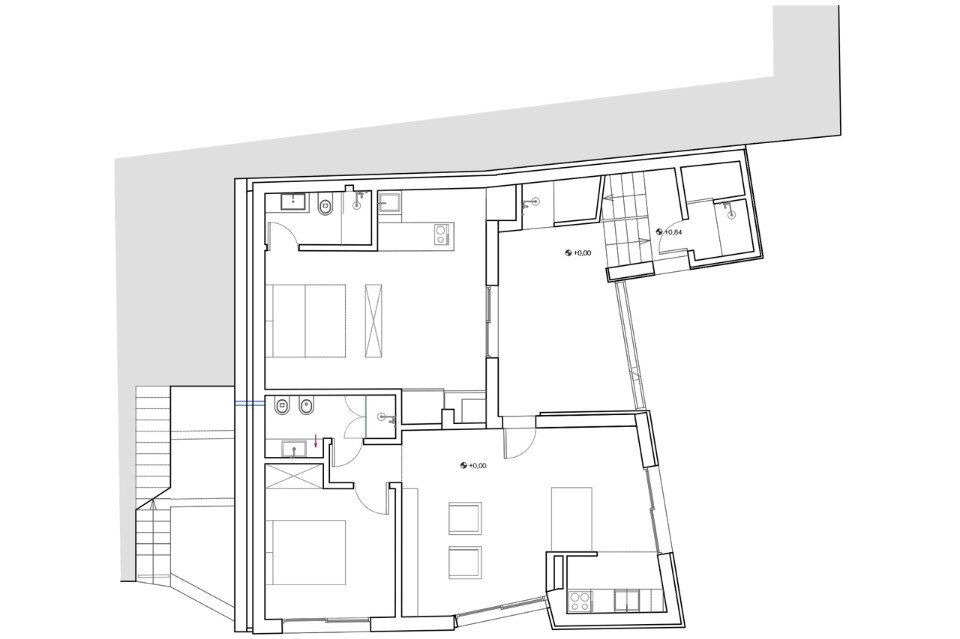
Casa PC, Porto Palo di Menfi, Sicilia
Tipologia: casa unifamiliare
Architetti: Gruppo Vid’A (Gaetano Gulino, Santi Albanese)
Strutture: Gaspare Francesco Ciaccio
Costruzione: Impresa Edile Ardizzone
Completamento: 2015
