View gallery
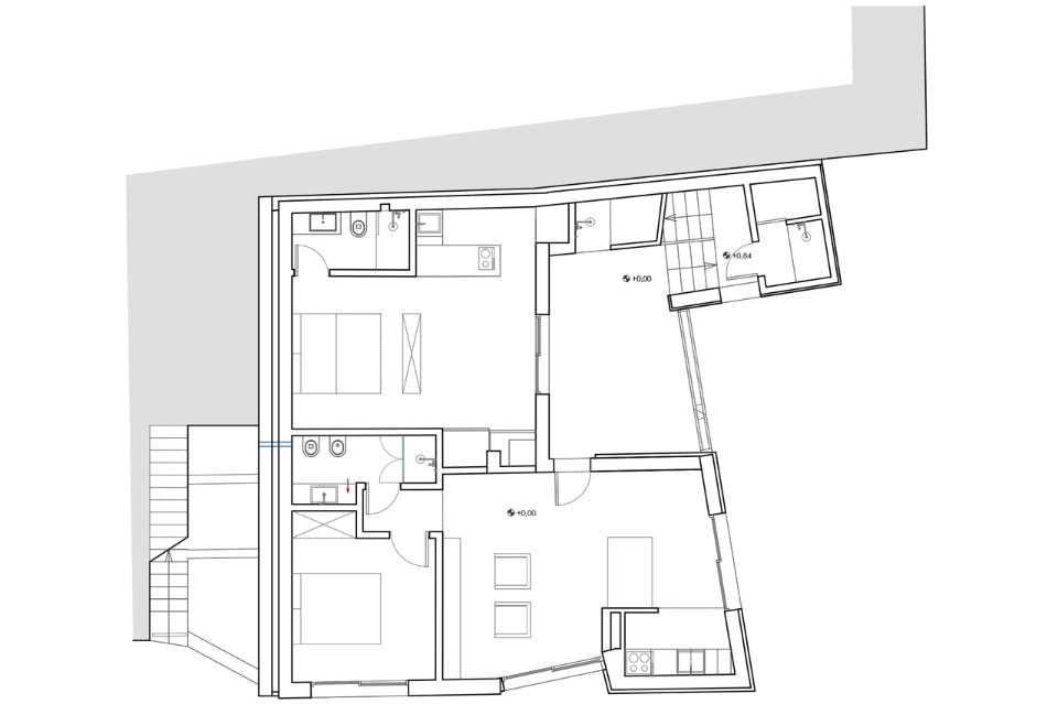
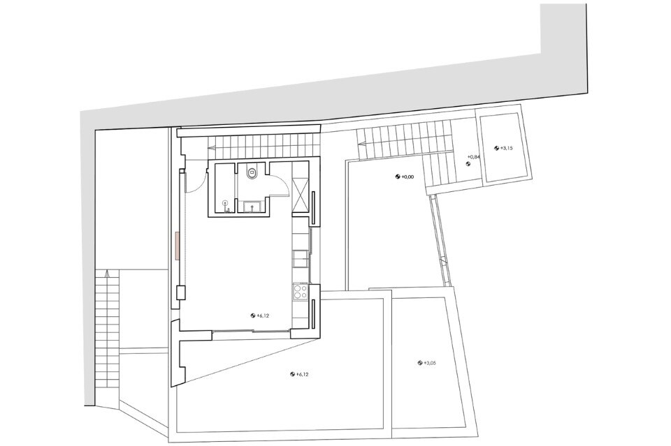
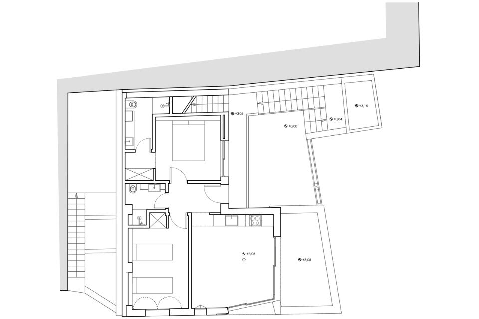
House PC, Porto Palo, Menfi, Sicily
Program: single-family house
Architects: Gruppo Vid’A (Gaetano Gulino, Santi Albanese)
Structural engineering: Gaspare Francesco Ciaccio
Contractor: Impresa Edile Ardizzone
Completion: 2015
