Galleria
exploded axo developed new2
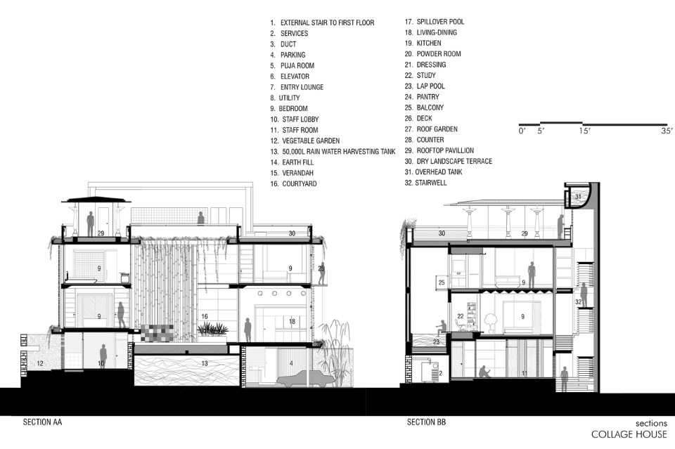
S+PS Architects, Collage House, disegno tecnico, elementi del collage
Collage House, Belapur, Navi Mumbai
Tipologia: abitazione privata
Architetti: S+PS Architects; Pinkish Shah, Shilpa Gore-Shah, Mayank Patel, Gaurav Agarwal, Shrutika Nirgun, Divya Malu, Manali Patel, Ved Panchwagh, Priyadarshi Srivastava
Cliente: Mr. Bhargava
Architetti associati: Sopan Prabhu Architects
Ingegneria strutturale: Rajeev Shah & Associates
Assistenza tecnica: Arkk Consultants
Imprese: Homework Constructions, Deepak Mhatre, Shafibhai, Imam Steel, Furkan Sheikh
Area del sito: 350 mq
Area costruita: 520 mq
Completamento: 2015
