View gallery
exploded axo developed new2
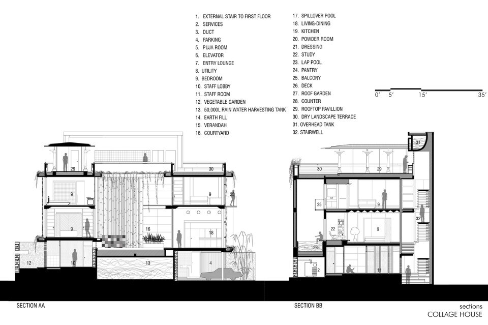
S+PS Architects, Collage House, technical drawing, collage elements
Collage House, Belapur, Navi Mumbai
Program: private housing
Architects: S+PS Architects; Pinkish Shah, Shilpa Gore-Shah, Mayank Patel, Gaurav Agarwal, Shrutika Nirgun, Divya Malu, Manali Patel, Ved Panchwagh, Priyadarshi Srivastava
Client: Mr. Bhargava
Liasion Architects: Sopan Prabhu Architects
Structural engineering: Rajeev Shah & Associates
Service consultants: Arkk Consultants
Main contractors: Homework Constructions, Deepak Mhatre, Shafibhai, Imam Steel, Furkan Sheikh
Site area: 350 sqm
Built area: 520 sqm
Completion: 2015
