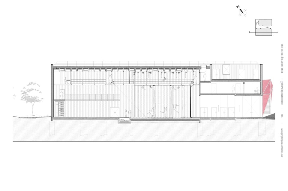
Lo spazio culturale è un grande blocco di 11x43 metri con una facciata mutevole, che alterna presenza e leggerezza. Questo edificio versatile combina programmazione funzionale, scala urbana, musica e natura. Al suo interno, la sostenibilità e la funzione sono enfatizzati e un percorso coperto “scavato” allarga l’angolo occidentale del piano terra per segnare l’ingresso.
Questo percorso è come una strada, un vero e proprio spazio pubblico che segna il sistema di circolazione principale con una lobby come un punto di distribuzione per tutti gli elementi del programma. I volumi diventano scultorei grazie ai pannelli colorati di metallo anodizzato. Di giorno, il sistema di circolazione è immerso nella luce natuale, mentre di notte si accende come uno schermo. Una perforazione specifica rende i pannelli sistemi acustici capaci di assorbire il rumore della lobby. Un rivestimento in ETFE permette di sfruttare i guadagni solari invernali e di proteggere l’interno durante l’estate.
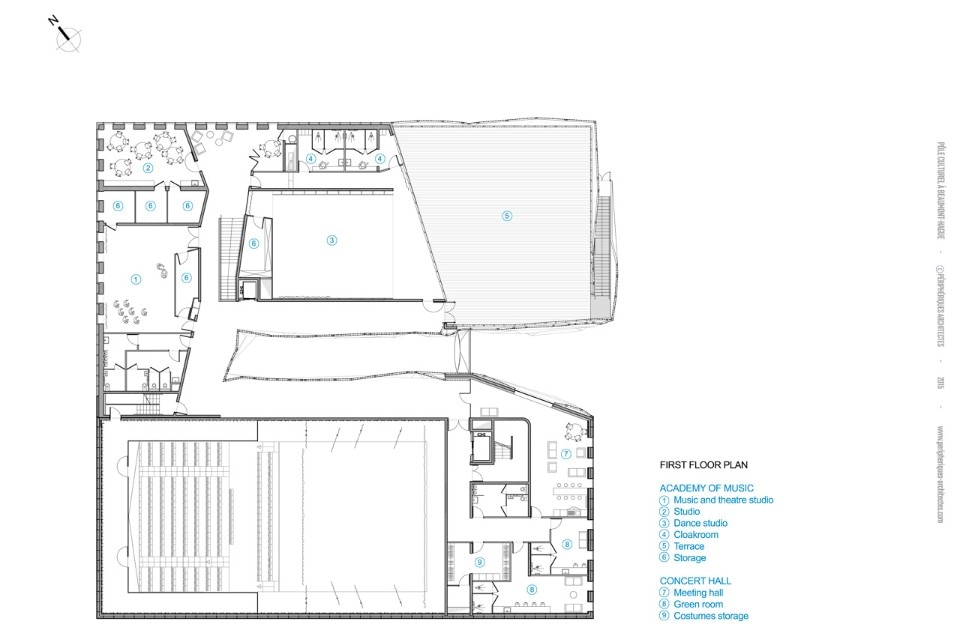
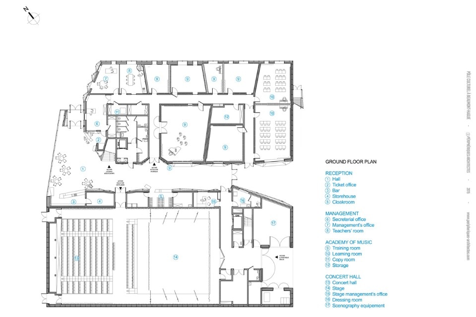
La scuola di musica vicino alla hall permette agli artisti e agli studenti di incontrarsi e suonare insieme. La diversità dei programmi è pensata per offrire momenti condivisi tra gli utenti. Dallo spazio pubblico, le attività delle associazioni sono chiaramente leggibili, in modo da favorirne la diffusione.
Galleria
COUPE AA (2)
COUPE BB
\\MT\Projets\01-CONCOURS GAGNES\1003-BEAUMONT HAGUE\06_APD\01_DWG\PER-BEA-APD-FAC-110601 PER-CPE+FAC-A0-100 (1
\\MT\Projets\01-CONCOURS GAGNES\1003-BEAUMONT HAGUE\06_APD\01_DWG\PER-BEA-APD-FAC-110601 PER-CPE+FAC-A0-100 (1
Z:\\02-SETS PUBLICATION\\01 NEWS 2\\BEAUMONT HAGUE\\02 Plans Coupes Façades\\DWG\\PER-BEA-DCE-PM-120626 Présentation1 \(1\)
Espace Culturel de La Hague, Beaumont-Hague, Francia
Tipologia: centro culturale
Architetti: Peripheriques Architectes / Marin + Trottin Architects (Emmanuelle Marin + David Trottin)
Team di progetto: Charlotte Lefebvre With Anne Clerget, Emily Murphy, Alfredo Luvison, Camille Isaac-Dognin, Gabriele Motta, Anatole Jeannot, Kirsten Elliot, Thomas Dantec, Yann Peter, Alexandre Pascal, Mehrnoush Naraghi, Estelle Grange-Dubellé
Committente: Communaute De Communes De La Hague
Estimo: EGIS Centre Ouest (Caen)
Acustica: PEUTZ & Associés
Scenografia: LABEYRIE & Associés
Area: 2.560 mq
Costo: 6,5 M € escluse tasse
Completamento: 2015
