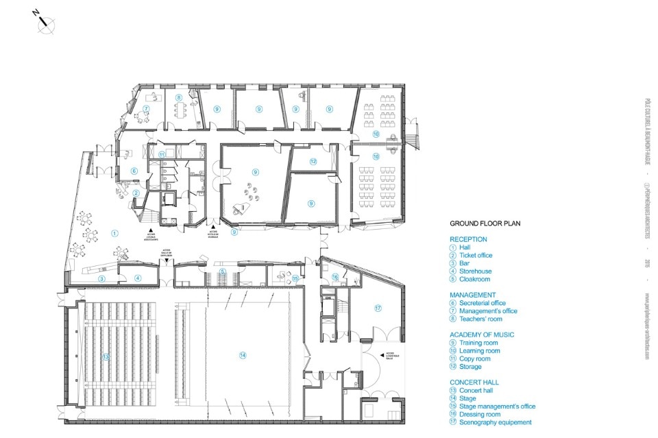
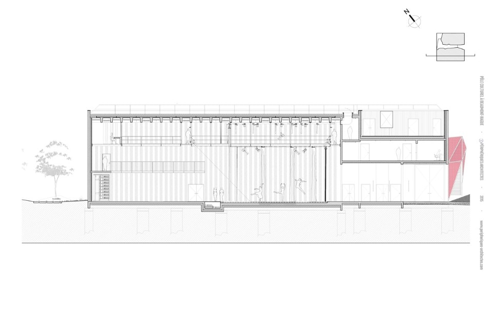
The cultural space is a compact block 43m large and 11m high. Marin + Trottin Architects appreciate the changing play of the facade, alternating presence and lightness. This versatile building combines program, urban scale, music and nature. Inside, sustainability and function are emphasized. They are “digging” a covered pathway enlarged on the West angle of the ground floor to mark the entrance of the building.
This alley is like a street, a real public space. A main circulation with a lobby as a point of distribution for all program elements. Volumes receive sculptural feature due to the colorful anodized metal panels. By day, the alley is bathed in light, then it lights up as a display by night. A specific perforation makes the panels play a role of acoustic baffle to absorb noise of the lobby.
A canopy encloses the top and the side of the alley. Mostly made with ETFE membrane, a solar optimization work allows to take advantage of winter solar gains and to protect itself through the hall masking effects during summer.
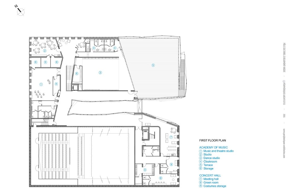
The music school nearby the diffusion hall allows artists and students to meet and play music together. Diversity of programs is a will to provide shared moments between users. From the public space, associations activities are clearly readable to assert their influence.
View gallery
COUPE AA (2)
COUPE BB
\\MT\Projets\01-CONCOURS GAGNES\1003-BEAUMONT HAGUE\06_APD\01_DWG\PER-BEA-APD-FAC-110601 PER-CPE+FAC-A0-100 (1
\\MT\Projets\01-CONCOURS GAGNES\1003-BEAUMONT HAGUE\06_APD\01_DWG\PER-BEA-APD-FAC-110601 PER-CPE+FAC-A0-100 (1
Z:\\02-SETS PUBLICATION\\01 NEWS 2\\BEAUMONT HAGUE\\02 Plans Coupes Façades\\DWG\\PER-BEA-DCE-PM-120626 Présentation1 \(1\)
Espace Culturel de La Hague, Beaumont-Hague, France
Program: cultural centre
Architects: Peripheriques Architectes / Marin + Trottin Architects (Emmanuelle Marin + David Trottin)
Project Team: Charlotte Lefebvre With Anne Clerget, Emily Murphy, Alfredo Luvison, Camille Isaac-Dognin, Gabriele Motta, Anatole Jeannot, Kirsten Elliot, Thomas Dantec, Yann Peter, Alexandre Pascal, Mehrnoush Naraghi, Estelle Grange-Dubellé
Client: Communaute De Communes De La Hague
Quantity surveyor:EGIS Centre Ouest (Caen)
Acoustic: PEUTZ & Associés
Scenography: LABEYRIE & Associés
Area: 2,560 sqm
Cost: 6,5 M € not including VAT
Completion: 2015
