All’interno del parco, una zona boschiva con alberi antichi, attraversata da un corso d’acqua, è stata mantenuta intatta. Per ragioni di qualità ambientale, la conservazione della foresta è stata un fattore determinante nella nuova distribuzione degli edifici. Inoltre, gli elementi botanici di grande valore che in parte circondano Can Marques, hanno offerto l’opportunità di restaurare e ampliare l’edificio in modo da ospitare l’auditorium e il teatro.
Gli elementi di valore da preservare nel parco e nella casa, tanto quanto la progettazione del parco stesso, hanno guidato il layout generale del complesso e determinato le sue connessioni interne ed esterne.
Secondo il programma funzionale presentato dal Comune, era necessario offrire un ampio spettro di usi scenici e attività musicali, cioè progettare un’attrezzatura che offrisse la maggior versatilità possibile per eventi artistici, culturali e sociali.
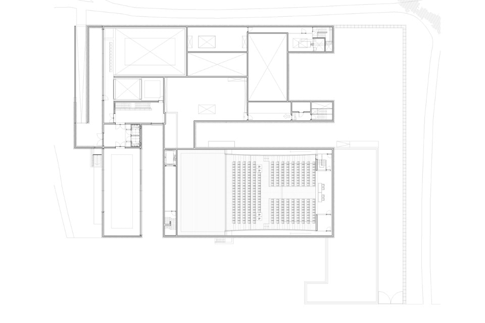
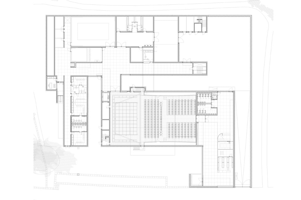
L’edificio si articola in pianta e in elevazione dal palco, “cuore” delle attività. Da questo punto dipendono tutte funzioni e le viste: musicisti e attori; spettatori, paesaggio, spogliatoi, deposito e amministrazione. Così, i diversi usi sono disposti all’interno di spazi legati al palco, e i volumi corrispondenti vengono visualizzati come tali, articolati attorno a una serie di corti.
La scelta di inserire il complesso con un fronte rivolto verso Ronda Sant Antoni risponde alle diverse richieste generali: non tenerlo troppo vicino al bosco, impostare correttamente il volume rispetto agli assi visivi del parco, renderlo visibile e accessibile dalla strada principale, e creare un accesso di qualità al parco.
Galleria
C:\Users\Ariadna\Desktop\ARCHIDAILY\TEATRO_AUDITORIO_Plantas_1 05-06-2013 Layout2 (1)
C:\Users\Ariadna\Desktop\ARCHIDAILY\TEATRO_AUDITORIO_Plantas_1 05-06-2013 Layout2 (1)
C:\Users\Ariadna\Desktop\ARCHIDAILY\TEATRO_AUDITORIO_Plantas_1 05-06-2013 Layout2 (1)
Auditorium Teatro di Llinars del Vallès, Llinars del Vallès, Barcellona, Spagna
Tipologia: auditorium
Architetti: Álvaro Siza Vieira + Aresta + G.O.P.
Responsabile di progetto: Álvaro Siza Vieira
Collaboratori: Clemente Meneres
Progetto acustico: Higini Arau
Ingegneria: GOP, Gabinete de Obras e Projectos Lda
Gestione delle opere di ingegneria: Jorge Nunes da Silva
Strutture: Jorge Nunes da Silva
Elettricità: Alexandre Martins
Idraulica: Raquel Fernandes
Riscaldamento, ventilazione e aria condizionata: Raul Bessa
Impresa: Teatre Llinars UTE (Construccions Deumal SA – CERTIS Obres i Serveis)
Completamento: 2015
