Prima di tutto una casa di famiglia: gli ambienti sono informali, ma ricchi di spazi accessori, luci inaspettate e volumi verticali complessi. Lo sviluppo planimentrico è semplice per sfruttare al massimo il sito vincolato, ridurre la massa dell’edificio rispetto alla strada e rispondere agli schemi di vita della famiglia.
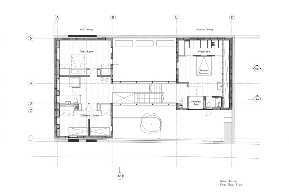
Composte da due rettangoli, uno leggermente più piccolo, lontano e impostato un metro al di sotto del livello della strada, le ali ospitano le zone giorno al piano terra e le camere da letto al piano superiore. Il collegamento è un passaggio vetrato che illumina la casa e crea respiro tra gli spazi interni. I due gusci che ospitano le zone giorno e notte sono rivestite di uno strato di 4 mm di acciaio corten, secondo una complessa combinazione di struttura e facciata. L’acciaio cortennon richiede manutenzione ed è addolcito da un mosaico di saldature a vista e pannelli perforati. I toni arancio profondi del corten e le perforazion richiamano la luce pezzato e la tavolozza autunnale dei vicini Kew Gardens. All’interno, rovere impiallacciato e pannelli Dinesen per il pacimento sono i materiali base che creano la particolare atmosfera leggera e raffinata.
Una serie di vincoli di pianificazione – tra cui un contesto sotto tutela, un cambio di destinazione e nessun accesso su tre lati – ha costituito la base del progetto. Per superare queste sfide Piercy&Company ha inserito la casa dietro una muratura in mattoni del XIX secolo dividendola in due falde gemelle in armonia con le volumetrie locali. La patina naturale dell’acciaio, con i suoi segni, macchie e perforazioni dà a ogni superficie un carattere unico a seconda dell’esposizione e dell’orientamento; la ancora nel suo contesto e diffonde un senso di permanenza.
Kew House è una costruzione sperimentale, guidata dal comune interesse del cliente e dell’architetto per un approccio bilaterale e rivolto verso l’auto-costruzione come possibilità emergente dalla fabbricazione digitale. Gli involucri di acciaio corten sono stati prefabbricati a Hull, e assemblati in loco. La fresatura a controllo numerico e le opere di falegnameria realizzate in cantiere sono state usate per creare pannelli su misura, mobili e opere di ebanisteria che sono state assemblate dal cliente e da un piccolo team di laureati in architettura, testando la teoria che la fabbricazione digitale può ridurre la distanza tra progettazione e produzione.
Galleria
Kew House, Londra, Regno Unito
Tipologia: casa unifamiliare
Architetti: Percy&Company
Ingegneria strutturale: Price & Myers
Consulenti per la sostenibilità: Price & Myers
Impresa: Commercial Systems International, Estbury Basements, Sam Lucas
Area: 368 mq
Completamento: 2015
