Il progetto di MVRDV colma questa lacuna con un edificio iconico e funzionale che fornisce sia una tribuna che uno spazio coperto che si affaccia sull’acqua. L’obiettivo del club è quello di essere il più accessibile possibile, il che significa che è aperto al pubblico, gratuitamente, 365 giorni l’anno. Non è un club privato, ma un luogo di incontro per giovani e meno giovani, dove si può prendere un caffè e fare uno spuntino, incontrarsi con gli amici, o anche solo controllare la posta elettronica.
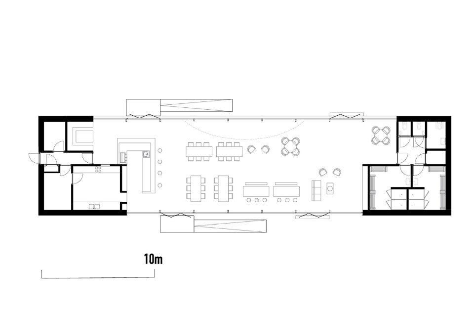
La sfida di MVRDV era quella di creare un edificio che funzionasse come luogo di incontro per la zona. Un soggiorno per IJburg, un edificio che è parte della comunità, come un pezzo di arredo urbano. La club house è un volume molto aperto con i servizi su entrambi i lati, come spogliatoi, una cucina, deposito e servizi igienici.
Lo spazio principale è multifunzionale, in modo che possa essere utilizzato per molti eventi. Il tetto scende verso il lato sud e si alza verso nord fino a un’altezza di sette metri, creando una tribuna informale. L’ampia facciata di vetro a nord consente ampia illuminazione naturale e offre una vista sul lago IJ.
Galleria
The Couch, Amsterdam, Paesi Bassi
Tipologia: tennis club e tribune
Architetti: MVRDV
Design team: Winy Maas, Jacob van Rijs e Nathalie de Vries con Renske van der Stoep, Pepijn Bakker, Arjen Ketting, Sanne van der Burgh, Cristina Gonzalo e Rosa Rogina
Collaboratori: Studio Bouwhaven
Ingengneria strutturale: ABT
Committente: TC IJburg
Impresa: Romijn Bouw
Area: 322 mq
Completamento: 2015
