In questo insieme molto minerale, l’allineamento casuale e le inflessioni dei paletti di sostegno del cortile suggeriscono un’apertura della pianta. Questo è il bordo di una foresta dove i genitori possono ripararsi in attesa dei loro figli che entrano ed escono da scuola.
Grazie alla separazione, la riduzione della superficie libera le superfici posteriori del terreno per un giardino e un percorso educativo. L’accesso al parcheggio docenti avviene attraverso un ingresso sotto il collegamento tra la scuola e la mensa, per evitare che i bambini attraversino una strada con automobili.
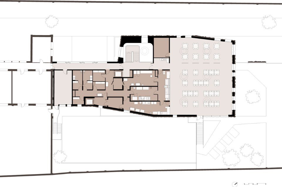
Grazie alla sua particolare posizione, l’edificio ha diversi punti di ingresso che permettono a diverse tipologie di utenti di accedere in condizioni ottimali. Dalla scuola materna, la connessione passa inosservata: il corridoio che porta fuori dalle classi prosegue raggiungendo direttamente la mensa. Per i più piccoli, è una garanzia di un accesso comodo e sicuro: non c'è bisogno di mettere cappotti, né di usare le scale. Gli studenti delle scuole elementari entrano al piano terra dal loro cortile, e gli utilizzatori esterni dalla strada quando viene utilizzata come sala polivalente, in base alle specifiche indicate per il progetto.
Luogo amichevole, “Roc” è quindi il punto di confluenza per eccellenza: incontro delle due scuole, centro del blocco, collegamento tra il pubblico e il privato, confluenza della parte superiore e la parte inferiore.
Dall’interno, la sala da pranzo ha il grande vantaggio dell’elevazione: la luminosità. Le finestre di dimensione variabile perforano la facciata sul ritmo di una partizione sconosciuta finora, mentre i timpani sono aperti da ampie finestre di vetro piano. Pozzi di luce maestosi lasciano entrare molta luce naturale.
La sala da pranzo, inondata di luce, ha anche un comfort acustico ideale, grazie ad un rivestimento di intonaco lisciato a mano, di solito riservato alle sale da concerto. La superficie bianca mette in evidenza con la sua sobrietà le pareti di roccia artificiale, identiche all’esterno.
Le “Roc”, Tourcoing, France
Tipologia: mensa scolastica
Architetto: D’HOUNDT+BAJART architectes&associé
Strutture: KHEOPS ingénierie
Impresa: BET fluides et électricité - Beha Legrand, BET cuisines collectives et hygiène
Area: 939 mq
Completamento: 2015
Costo: 2,6M €HT
