In this very mineral set, the random alignment and the inflections of the courtyard’s supporting posts suggest a raid of the plant. This is the edge of a forest where parents can shelter waiting for their children to go out of school.
Thanks to the separation, the reduction of the ground surface area frees the rear surfaces of the land for a garden and an educational plot. The access to the teachers parking is through a hall under the connection between the kindergarten and the restaurant, in order to avoid children from crossing cars.
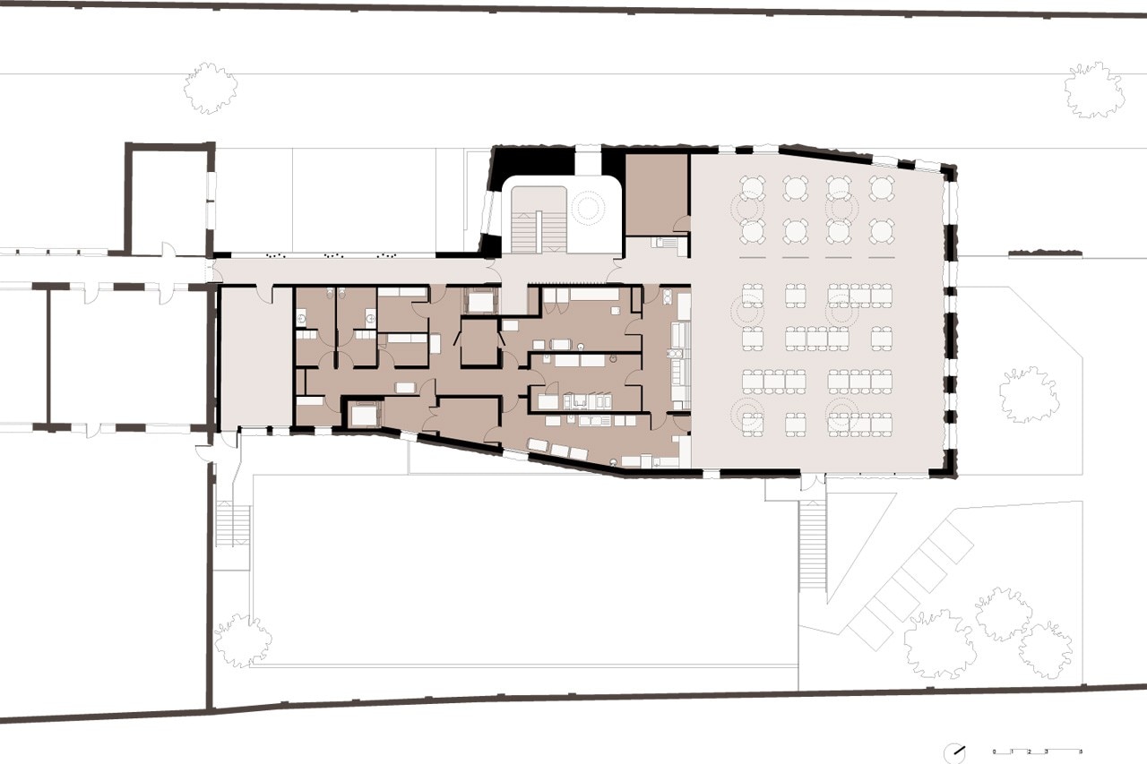
With its particular position, the building has several entry points that allow different types of users to access in optimum conditions. From the kindergarten, the connection goes unnoticed: the corridor leading off to the classes continues to reach directly to the restaurant. For the little ones, it is a guaranteed convenient and safe access: no need to put on coats to leave, nor to use the stairs. The elementary school students enter the ground floor from their yard, and outside users access from the street to the building when this latter is used as a multipurpose room, according to the specifications listed for the project.
Friendly place, “Roc” is thus the confluence point par excellence: meeting of the two schools, center of the block, connection between the public and the private, confluence of the top and the bottom, of here and there.
From the inside, the dining hall has the great advantage of the elevation: the brightness. The variable size windows pierce the facade on the pace of an unknown partition up to now, while the gables are open by large plate glass windows. Majestic light shafts, smoothly, let in plenty of natural light.
The dining hall, bathed in light, has also an ideal acoustic comfort, thanks to a coating of plaster smoothed by hand, usually reserved for concert halls. The white surface highlights with its sobriety the artificial rock walls, identical to the outside.
The “Roc”, Tourcoing, France
Program: dining hall
Architect: D’HOUNDT+BAJART architectes&associé
Structures: KHEOPS ingénierie
Contractor: BET fluides et électricité - Beha Legrand, BET cuisines collectives et hygiène
Area: 939 sqm
Completion: 2015
Cost: 2,6M €HT
