Le forze della natura del luogo – il mare, la luce del sole e le correnti locali – determinano il progetto, che appare come scolpito da questi elementi: la ricerca di una forte relazione con il contesto ha fatto sì che ogni materiale fosse scelto dopo un attento esame dei colori e delle texture presenti nell’ambiente.
Ciò si traduce in un particolare oggetto architettonico, un diamante in legno che appare diverso in ciascuno dei suoi lati, completamente integrato nel paesaggio ma che crea anche un collegamento forte ma sottile tra il suo interno e le immediate vicinanze.
La casa ricrea al suo interno l’esperienza di fare una passeggiata sulle dune attraverso una promenade architecturale spiraliforme attorno al suo nucleo, un percorso continuo che conduce da una piattaforma all’altra, ciascuna pochi gradini più in alto di quella successiva, che genera interessanti relazioni spaziali e visive tra ogni stanza, ma anche verso il paesaggio, grazie ad aperture le cui forme, dimensioni e posizioni sono studiate in relazione alle funzioni associate a ogni spazio.
Attraverso il dialogo intenso tra l’architetto e i clienti, è stato reso possibile realizzare un progetto su misura che soddisfa tutti i loro desideri: un approccio olistico in cui ogni dettaglio è stato pensato meticolosamente, senza mai perdere di vista le idee alla base del progetto, che integra paesaggio, architettura e interior design.
Questo rispetto verso l’ambiente si è tradotto nella scelta di un metodo di costruzione con pannelli di legno prefabbricati e modulari, precedentemente progettati utilizzando software BIM, in modo da ridurre drasticamente il tempo di costruzione.
L’uso intensivo del legno, l’attuazione di metodi passivi per evitare guadagni e perdite termiche indesiderate in combinazione con l’auto-produzione di energia attraverso pannelli solari e un camino a biomassa, fanno della Dune House una residenza ecocompatibile con un’impronta ecologica minima.
Galleria
140829 Interior platforms Axo FINAL
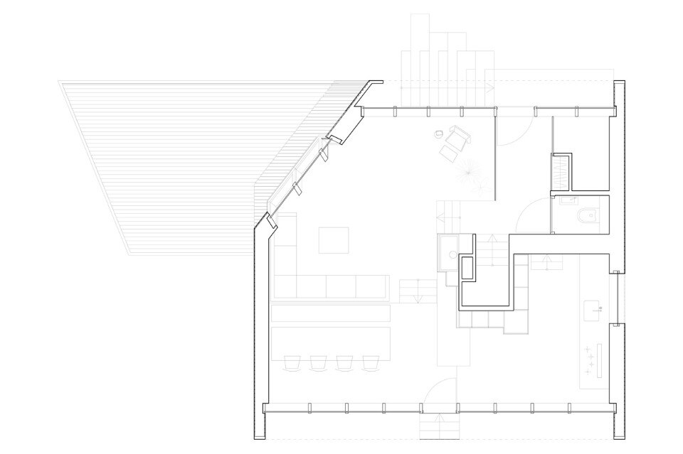
DH - beganegrond
DH - kelder
DH - verdieping
DH - oost gevel
DH - noord gevel
Dune House, Terschelling, Paesi Bassi
Tipologia: casa unifamiliare
Architetti: Marc Koehler Architects
Responsabile di progetto: Carlos Moreira
Consulenza per gli interni: Thomas Wellink e Annemarie Swemmer
Design team: Kasia Heijerman, Miriam Tocino, Anna Szcsurek e Jakub Zoha
Realizzazioni tecniche: AchterboschZantman architecten
Impresa: P.A. Wiersma Aannemingsmaatschappij BV
Impresa per gli interni: Koen Vleugel
Impianti: Bakker Installatietechniek
Facciate: Huijberts Gevelbouw
Area: 180 mq
Completamento: 2015
