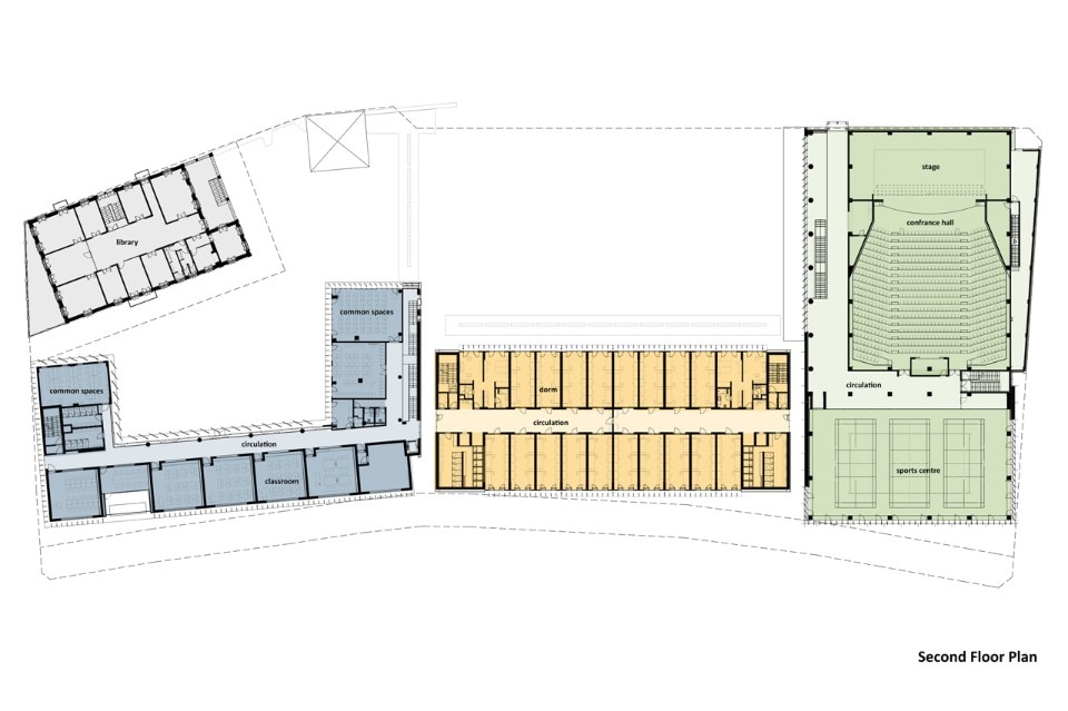
Il campus è composto da tre blocchi: un edificio scolastico da 3.600 mq, un dormitorio di 3.520 mq e un edificio polifunzionale di 5.250 mq. Essendo situato in uno dei punti più caldi del Mediterraneo, il progetto è pensato per massimizzare l’utilizzo di energia solare.
Le misure adottate per la climatizzazione all’interno e all’esterno dell’edificio sono supportate dagli alberi nel giardino, dai frangisole sulla facciata, e da tettoie che creano un percorso coperto in giardino e pannelli solari che rivestono le coperture orientate verso sud.
Galleria
Nuovo Campus Tac-Sev, Tarso, Turchia
Tipologia: campus
Architetti: Erginoğlu&Çalışlar
Team di progetto: İ. Kerem Erginoğlu, Hasan C. Çalışlar, Arın Tanrıkulu, Onat Över, Ayça Taylan, Sezen Bilge, Zeynep Şankaynağı, Yasemin Hacıkura, Işık Süngü, Emre Cestel
Progetto statico: Denge Mühendislik
Progetto meccanico: Beta Teknik Mühendislik
Progetto elettrico: Enkom Mühendislik
Consulenti facciate: Mimpa
Progetto paesaggistico: Peyzaj Tasarim
Impresa: Ran Inşaat
Area: 11.827 mq
Completamento: 2014
