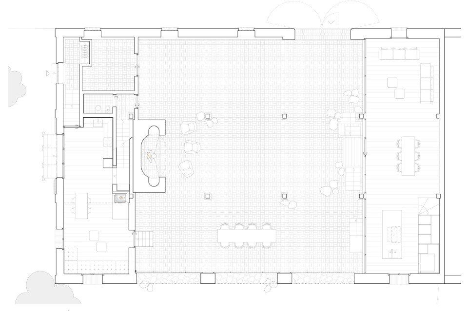
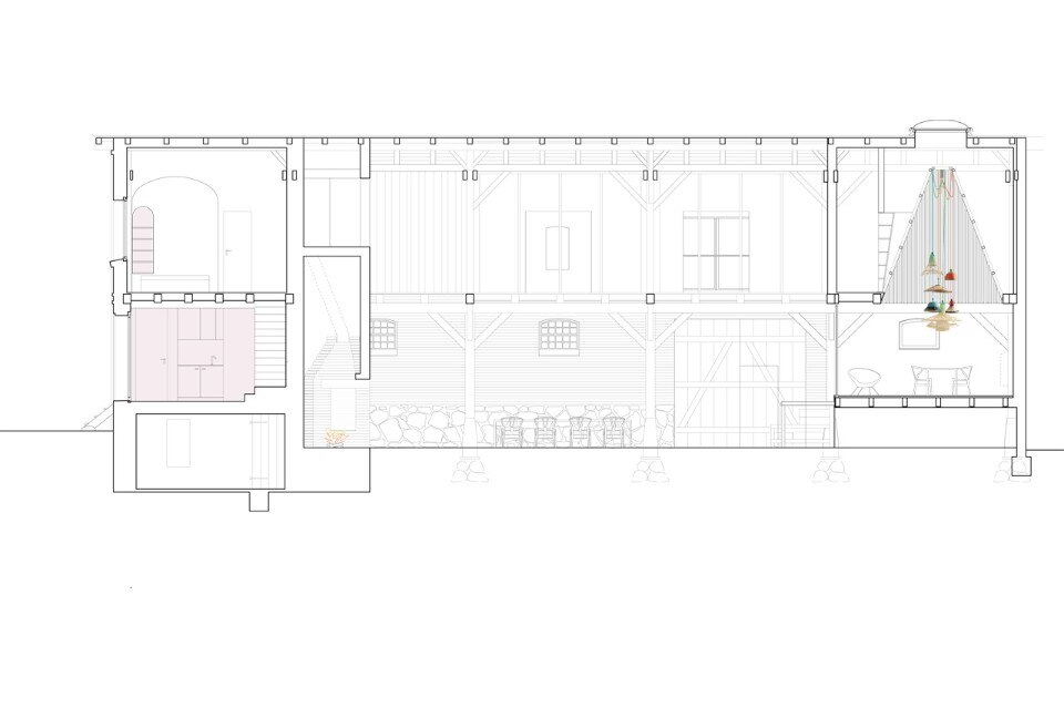
Questo vecchia stalla con fienile è un edificio estremamente stabile con spessi muri spessi di pietra, piccole finestre al piano di sopra e un grande cancello di legno sotto. La bellezza intrinseca delle travi in legno e la spaziosità del locale sono stati intaccati solo dalel operazioni di carotaggio. Il centro della casa è un soggiorno con camino a doppia altezz . Tre grandi nuove aperture ad arco, affacciate sul frutteto e sul paesaggio verde, possono essere chiuse da grandi elementi di legno.
La casa è stata progettata in modo che la grande sala sia riscaldata e circondata da un sistema di ambienti chiusi e riscaldati. Così, per le stagioni fredde possono essere utilizzate solo le aree più piccole e più socievoli della casa, come nidi di uccelli. Proprio accanto alla sala, leggermente rialzato, si trova il soggiorno e una cucina aperta. La zona pranzo è sormontata da una piramide di legno. Al piano superiore, intorno alla doppia altezza della sala, sono disposte tre camere da letto, due bagni, due studi e una loggia.
A un’estremità del fabbricato si trova l’appartamento per gli ospiti, accessibile separatamente ma collegato con la sala centrale. Al piano terra si trovano il soggiorno e la zona pranzo, al primo piano due camere da letto e un bagno. L’intervento ha interessato anche il rivestimento della costruzione. La differenza rispetto alla struttura sul lato opposto della strada è appena leggibile: con le nuove aperture rivolte verso il giardino privato, l’intervento porta solo la necessaria integrazione tra spazio interno ed esterno.
L’intero edificio è stato ripensato anche in termini di consumo energetico: le pareti delle camere riscaldate sono isolate all’interno con un riscaldamento a parete e intonaco d’argilla.
Galleria
Fergitz-website _ 10. Perspekti
Landhaus, Uckermark, Berlino
Tipologia: casa unifamiliare e appartamento
Architetti: Thomas Kröger Architekt
Area: casa 320 mq; appartamento 97 mq
Completamento: 2014
