Destinato all’edilizia sociale, il progetto di ristrutturazione prevede un’estensione in legno sul retro del fabbricato esistente.
L’estensione si distingue chiaramente dal manufatto esistente, con un nuovo profilo che stabilisce il carattere delle future modifiche al resto del blocco. I due edifici sono complementari e introducono una nuova iconografia nel contesto.
Per risparmiare risorse e materiali è stata data priorità al riuso dei materiali esistenti, decostruendo solo se necessario. L’addizione, posta contro la muratura esistente restaurata, contrasta con un tocco di contemporaneità. Il metodo costruttivo, interamente in legno, offre numerosi vantaggi: meno rifiuti e inquinamento grazie alla prefabbricazione, cantiera asciutto, senza trattamenti e rispettoso dell’ambiente.
Il progetto ha offerto l’opportunità di riflettere sui materiali utilizzati, le tecniche di lavorazione, la loro origine, applicazione, sostenibilità e possibile riutilizzo.
La valutazione del ciclo di vita (LCA) ha contribuito alle decisioni, sia per la riqualificazione del fabbricato esistente che per lo sviluppo del nuovo edificio. Questo progetto è stato un laboratorio che ha permesso agli architetti di sperimentare un lavoro che posiziona l’atto costruttivo in un processo dinamico in cui la vita dell’edificio inizia ben prima del suo completamento.
Per tutto il periodo estivo, il sito è stato aperto ai residenti locali e il caffè è stato riportato in vita con il nome di Coin des Reves.
Galleria
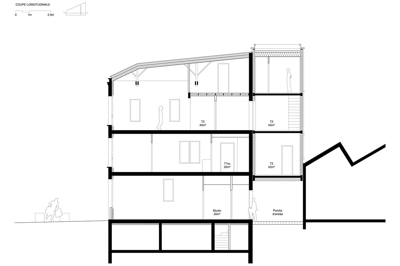
V:\04-PUBLICATIONS\01-PUBLI-Presse-Envoi\140901-AnnuelAMC\1101-ABC-PL RAMDAM-CP-LONG-100 (1)
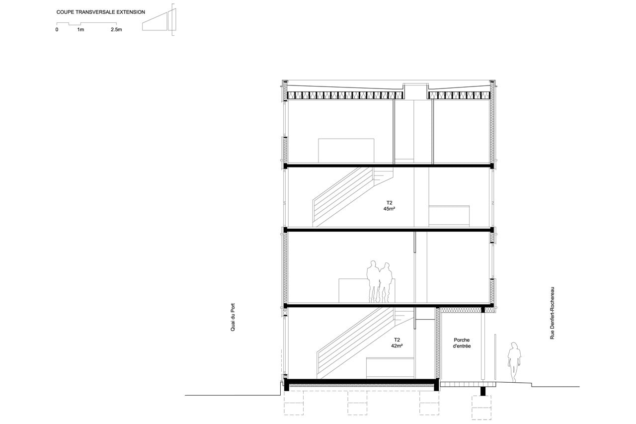
V:\04-PUBLICATIONS\01-PUBLI-Presse-Envoi\140901-AnnuelAMC\1101-ABC-PL RAMDAM-CP-TRANS-100 (1)
V:\04-PUBLICATIONS\01-PUBLI-Presse-Envoi\140901-AnnuelAMC\1101-ABC-PL RAMDAM-F-EST-100 (1)
V:\04-PUBLICATIONS\01-PUBLI-Presse-Envoi\140901-AnnuelAMC\1101-ABC-PL RAMDAM-F-OUEST-100 (1)
Au Bon Coin, Parigi
Tipologia: residenza
Architetti: Atelier d’Architecture Ramdam
Committente: SCI Au Bon Coin
Consulenza ingegneristica: Bureau Thermidor / IcTEC
Area: 201 mq
Costo: 400.000 € HT
Completamento: 2014
