La tipologia della casa, che segue un telaio a forma di A, è simile alle case tradizionali delle montagne cilene. Due volumi geometricamente indipendenti – un rettangolo e un triangolo – sono proporzionati per preservare la semplicità. Il primo, in cemento armato, diventa la base che si fondce con il terreno e sostiene la sua controparte triangolare, incontaminata.
Nel triangolo, in netto contrasto con il contesto, un vuoto proporzionato di capriate in legno crea un ambiente caldo. Una scala di legno collega verticalmente entrambi i volumi che, insieme alle grandi vetrate, fanno di questa casa una continua esperienza di tensione e dominio del paesaggio.
Galleria
/Volumes/DEL RIO ARQUITECTOS/_DIFUSION/PLANOS LIMPIOS/LA LEONERA.dwg
DRAA / Del Rio Arquitectos Asociados, rifugio La Leonera, Farellones, Cile. Pianta del primo piano
/Volumes/DEL RIO ARQUITECTOS/_DIFUSION/PLANOS LIMPIOS/LA LEONERA.dwg
DRAA / Del Rio Arquitectos Asociados, rifugio La Leonera, Farellones, Cile. Pianta del secondo piano
/Volumes/DEL RIO ARQUITECTOS/_DIFUSION/PLANOS LIMPIOS/LA LEONERA.dwg
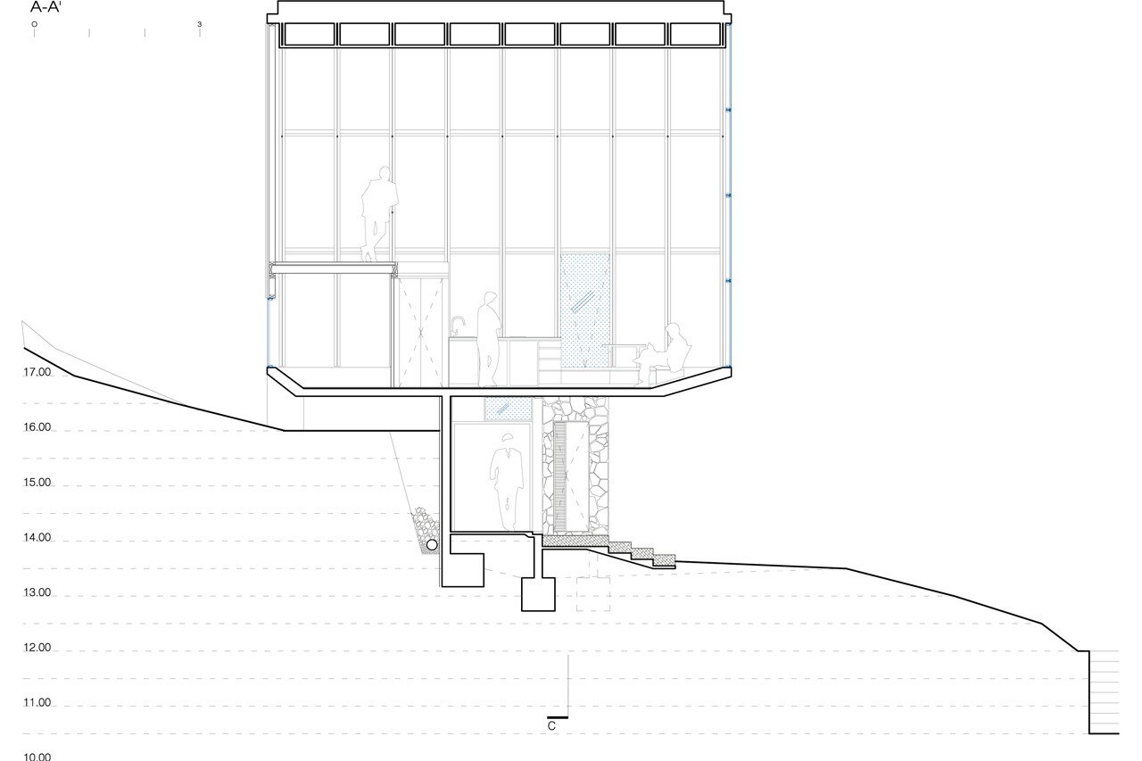
DRAA / Del Rio Arquitectos Asociados, rifugio La Leonera, Farellones, Cile. Sezione
/Volumes/DEL RIO ARQUITECTOS/_DIFUSION/PLANOS LIMPIOS/LA LEONERA.dwg
DRAA / Del Rio Arquitectos Asociados, rifugio La Leonera, Farellones, Cile. Sezione
/Volumes/DEL RIO ARQUITECTOS/_DIFUSION/PLANOS LIMPIOS/LA LEONERA.dwg
DRAA / Del Rio Arquitectos Asociados, rifugio La Leonera, Farellones, Cile. Sezione
/Volumes/DEL RIO ARQUITECTOS/_DIFUSION/PLANOS LIMPIOS/LA LEONERA.dwg
DRAA / Del Rio Arquitectos Asociados, rifugio La Leonera, Farellones, Cile. Prospetto
Rifugio La Leonera, Farellones, Cile
Tipologia: residenza
Architetti: DRAA / Del Rio Arquitectos Asociados
Design team: Nicolas del Rio + Felipe Camus
Collaboratori: Malo Chab, Matthias J. Götz
Impresa: Handitu ltda.
Ingegneria: ARBEC
Area: 100 mq
Completamento: 2014
