Galleria
atelierchang_knothouse_matersplan
Atelier Chang, Knot House, Geoje Island, Corea del Sud. Inquadramento
/Volumes/Projects/002_MindHome/02_DWG/04_CONSTRUCTION/002_1-A-B3-3000-cleanplan.dwg
Atelier Chang, Knot House, Geoje Island, Corea del Sud. Unità B, prospetto
/Volumes/Projects/002_MindHome/02_DWG/04_CONSTRUCTION/002_1-A-B3-3003.dwg
Atelier Chang, Knot House, Geoje Island, Corea del Sud. Unità B, prospetto
/Volumes/Projects/002_MindHome/02_DWG/04_CONSTRUCTION/002_1-A-B3-1000-cleanplan.dwg
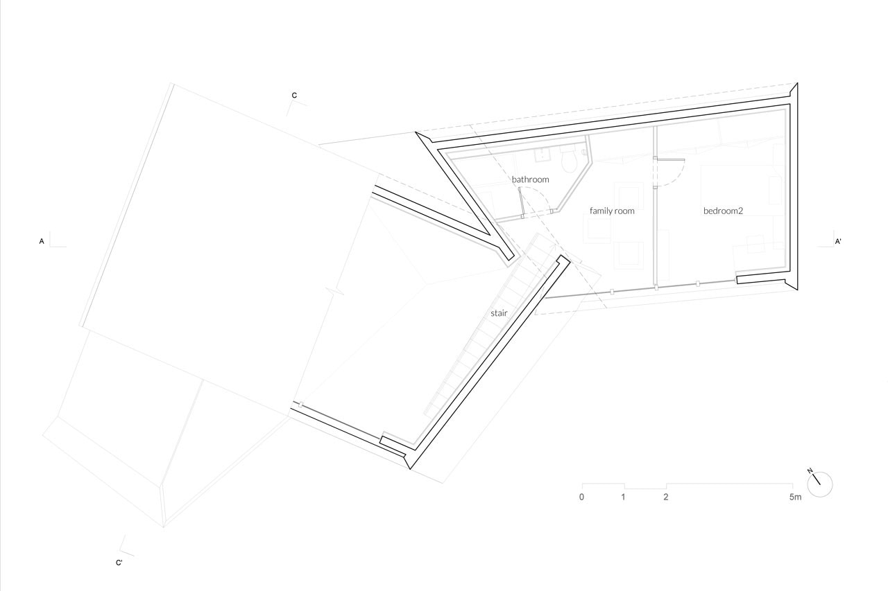
Atelier Chang, Knot House, Geoje Island, Corea del Sud. Unità B, pianta del piano terra
/Volumes/Projects/002_MindHome/02_DWG/04_CONSTRUCTION/002_1-A-B3-2000-cleansection.dwg
Atelier Chang, Knot House, Geoje Island, Corea del Sud. Unità B, sezione
/Volumes/Projects/002_MindHome/02_DWG/04_CONSTRUCTION/002_1-A-C3-3000-cleanelevation.dwg
Atelier Chang, Knot House, Geoje Island, Corea del Sud. Unità C, prospetto
/Volumes/Projects/002_MindHome/02_DWG/04_CONSTRUCTION/002_1-A-C3-3003-cleanelevation.dwg
Atelier Chang, Knot House, Geoje Island, Corea del Sud. Unità C, prospetto
/Volumes/Projects/002_MindHome/02_DWG/04_CONSTRUCTION/002_1-A-C3-1000-cleanplan.dwg
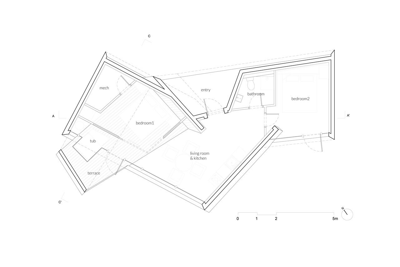
Atelier Chang, Knot House, Geoje Island, Corea del Sud. Unità C, pianta del piano terra
/Volumes/Projects/002_MindHome/02_DWG/04_CONSTRUCTION/002_1-A-C3-1001-cleanplan.dwg
Atelier Chang, Knot House, Geoje Island, Corea del Sud. Unità C, pianta del primo piano
Knot House, Geoje Island, Corea del Sud
Tipologia: residence
Architetti: Atelier Chang
Committente: HOM (House of Mind) Geoje
Strutture: RC structure
Progetto strutturale: Thekujo
Architetto locale: K20Art Architects
Area: 403 mq
Completamento: 2014
