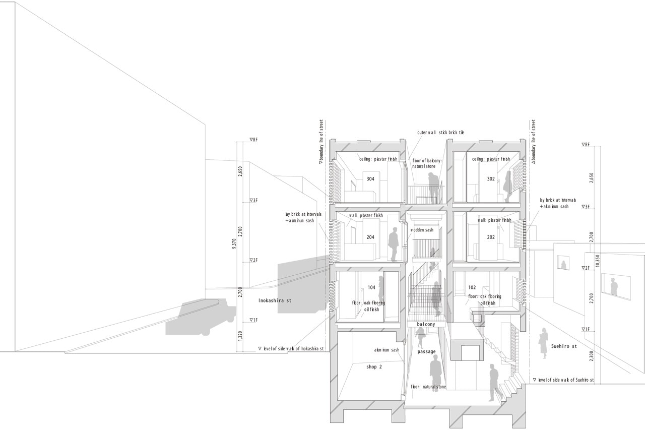
I prospetti in mattoni sono quasi completamente opachi, forati dall’ingresso al passaggio pedonale di collegamento tra le due strade.
All’interno, ciascun appartamento affaccia su strada con una finestra disegnata dai mattoni sfalsati, in modo da escludere il caotico paesaggio urbano lasciando filtrare la luce con un effetto puntiforme simile a quello del sole tra le fronde degli alberi. Il secondo affaccio è invece rivolto verso il cortile interno, con finestra vetrate e telai in legno.
Galleria
Shugoin, Tokyo, Giappone
Tipologia: edificio residenziale e commerciale
Architetti: Yukio Asari / Love Architecture
Ingegneria strutturale: Kenji Nawa (Nawaken-gym)
Area: 514 mq
Completamento: dicembre 2013
