Domus Digital Archive PRO on sale

Love Architecture: Shugoin

Japan-based studio Love Architecture completed in Tokyo Shugoin, a residential building composed by four blocks designed with a dynamic approach to activate the public and private spaces.

Love Architecture: Shugoin
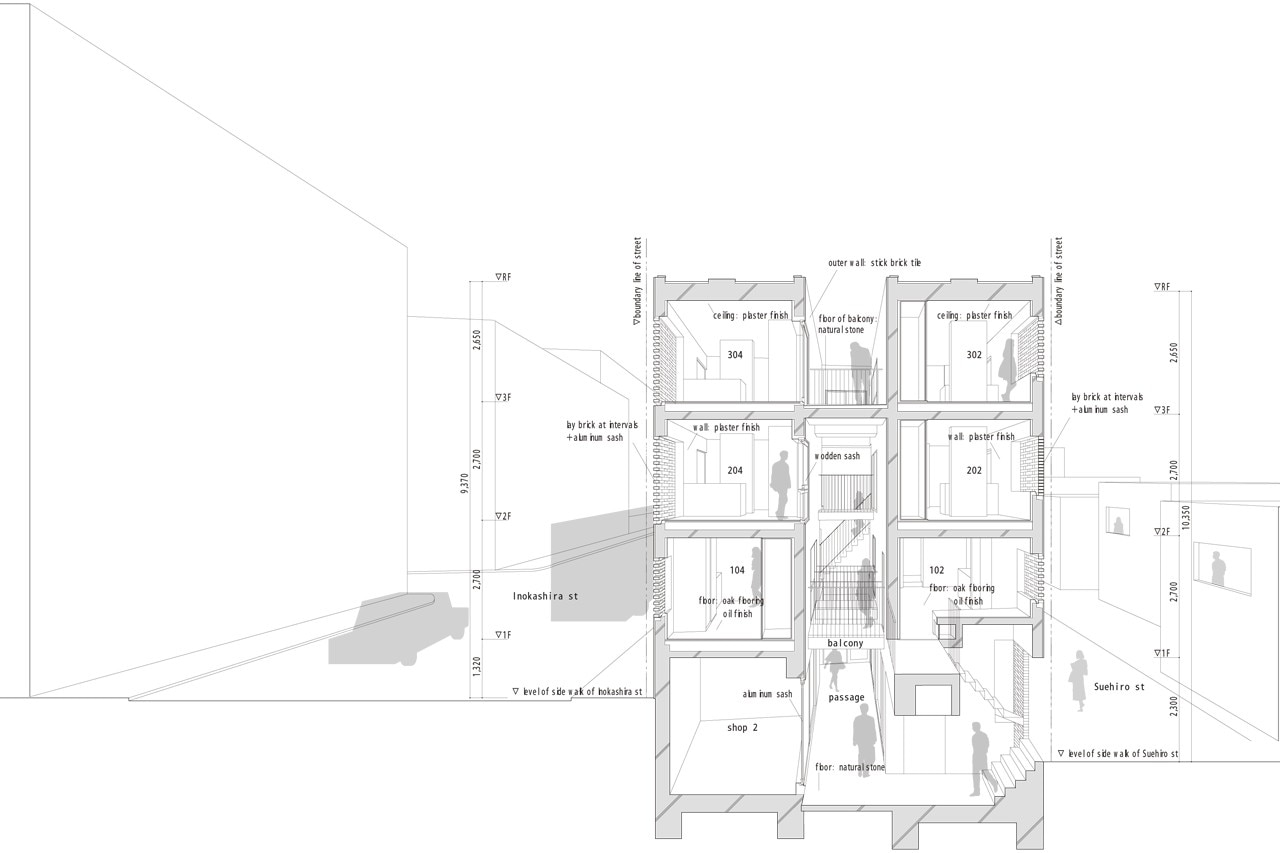
The site is in a city block between a highway and a shopping street. In Shugoin, the adjustment of the public-private relationship was attempted through a dynamic approach to activate the public and private by new boundaries.
The building was built with the upper limit of building coverage, 80%. Instead of using the remaining 20% as a common space, the area is open to the public as a pass-through passage to connect the north and south sides of the town. Two entrances for the residences are made on the north and south sides. Four blocks of residences are connected with only two staircases, in order to keep an open sky view. By spatially making the staircases and balconies in the pass-through passage area, an option to pass by or a dynamism for meeting with various people are simultaneously created.
Love Architecture: Shugoin
Love Architecture, Shugoin, Tokyo
For the south and north facades, openwork bricks and running bond bricks are used, respectively. As a result, the only indications that the passage goes through to the next street are the gaping holes in the privacy-protecting walls along the streets.
Such exterior adjustments of relationships are also effective for interiors. Each household has two types of openings with different natures: one faces towards the street with openwork bricks and aluminum sashes, and another faces towards the pass-through passage with wooden sashes. The former shuts out the chaotic townscape, while allowing dot-shaped lights to go through, resembling sunlight passing through leaves.

Shugoin, Tokyo, Japan
Program: residential and commercial building
Architects: Yukio Asari / Love Architecture
Structural Engineer: Kenji Nawa (Nawaken-gym)
Area: 514 sqm
Completion: December 2013

Latest on Architecture

Latest on Domus

China Germany India Mexico, Central America and Caribbean Sri Lanka Korea icon-camera close icon-comments icon-down-sm icon-download icon-facebook icon-heart icon-heart icon-next-sm icon-next icon-pinterest icon-play icon-plus icon-prev-sm icon-prev Search icon-twitter icon-views icon-instagram