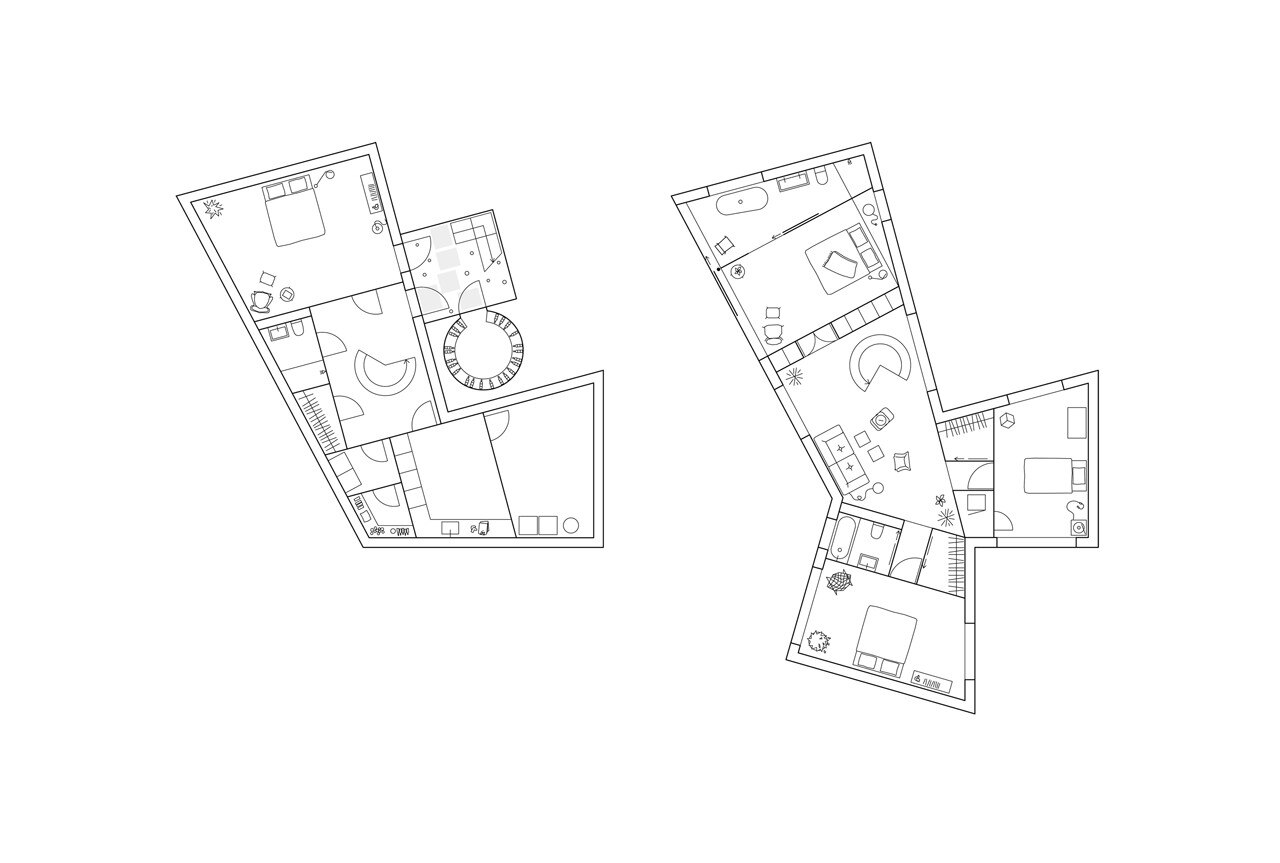
Ne è risultata un’opera che esprime insieme contrasto e armonia con il luogo e il contesto. Il suo volume è stato mantenuto basso, senza plinti o sporgenze esterne. Rivolto verso Öresund, il lotto terrazzato affaccia sull’oceano, ma gli architetti, contrastando una tendenza generale, scelgono di non rivolgere tutte le camere sullo stesso lato, valorizzando anche gli affacci sui terrazzamenti in mattoni e pietra, sul verde e su una vecchia ghiacciaia semi-interrata nella collina.
La forma dell’edificio divide il lotto in diversi spazi esterni, mente all’interno crea una sequenza di ambienti contigui. Non immediatamente percepibile, la forma grafica dei piani trasforma il volume in un edificio che si legge come un insieme frammentato, suggestivo da alcuni punti di vista, lineare da altri.
Galleria
Molle_by_the_Sea_PLAN_1-200.vwx
Molle_by_the_Sea_PLAN_1-200.vwx
Molle_by_the_Sea_PLAN_1-200.vwx
Molle_by_the_Sea_PLAN_1-200.vwx
Mölle by the Sea, Mölle, Svezia
Tipologia: casa unifamiliare
Architetti: Elding Oscarson (Jonas Elding, Johan Oscarson, Yuko Maki, Gustaf Karlsson)
Tessuti: Akane Moriyama
Committente: privato
Area: 300 mq
Completamento: giugno 2013
