Galleria
C:\Users\Ignacio\Desktop\diseño interior\HURACÁN_PUBLICACIONES Model (1)
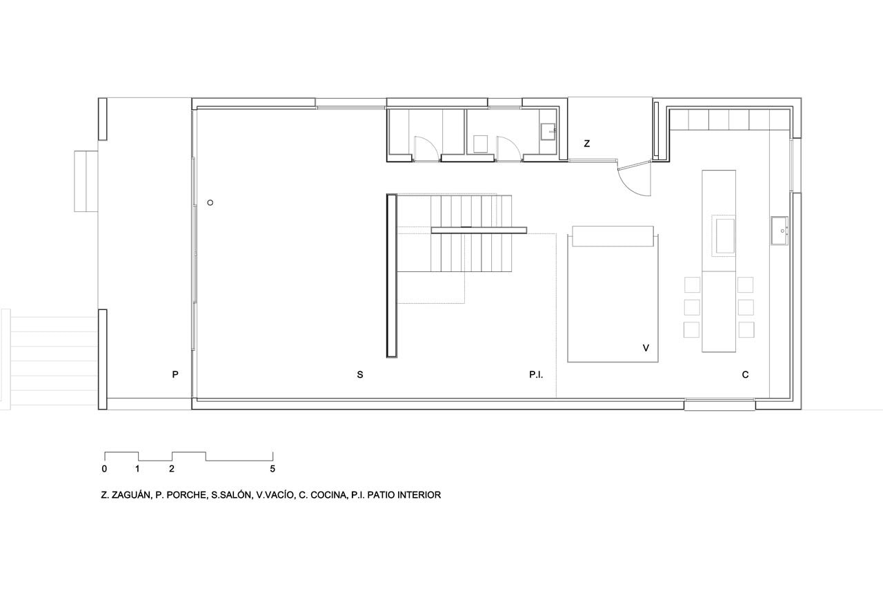
Bojaus Arquitectura, House H, Las Rozas, Madrid, Spagna. Pianta del piano terra
C:\Users\Ignacio\Desktop\diseño interior\HURACÁN_PUBLICACIONES Model (1)
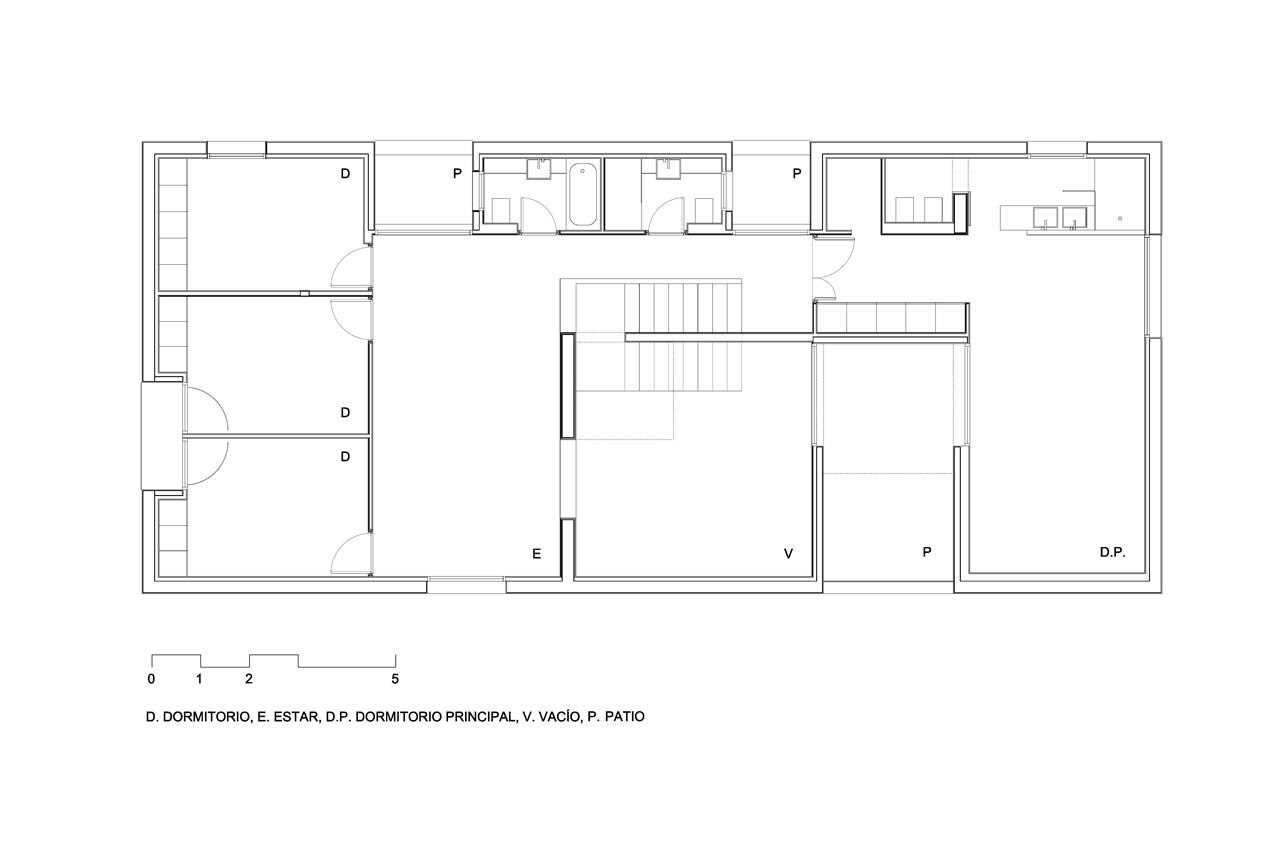
Bojaus Arquitectura, House H, Las Rozas, Madrid, Spagna. Pianta del secondo piano
House H, Las Rozas, Madrid, Spagna
Tipologia: casa unifamiliare
Architetti: Bojaus Arquitectura (Ignacio Senra e Elisa Sequeros)
Ingegneria edile: Virginia Láinez
Strutture: Israel Bartolomé
Impresa: PECSA
Area: 556 mq
Completamento: 2013
