View gallery
C:\Users\Ignacio\Desktop\diseño interior\HURACÁN_PUBLICACIONES Model (1)
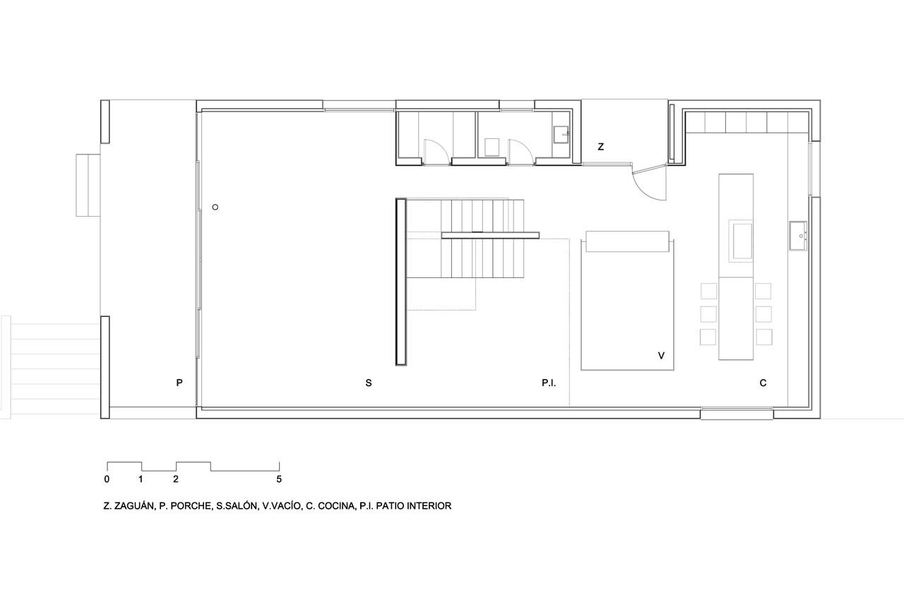
Bojaus Arquitectura, House H, Las Rozas, Madrid, Spain. Ground floor plan
C:\Users\Ignacio\Desktop\diseño interior\HURACÁN_PUBLICACIONES Model (1)
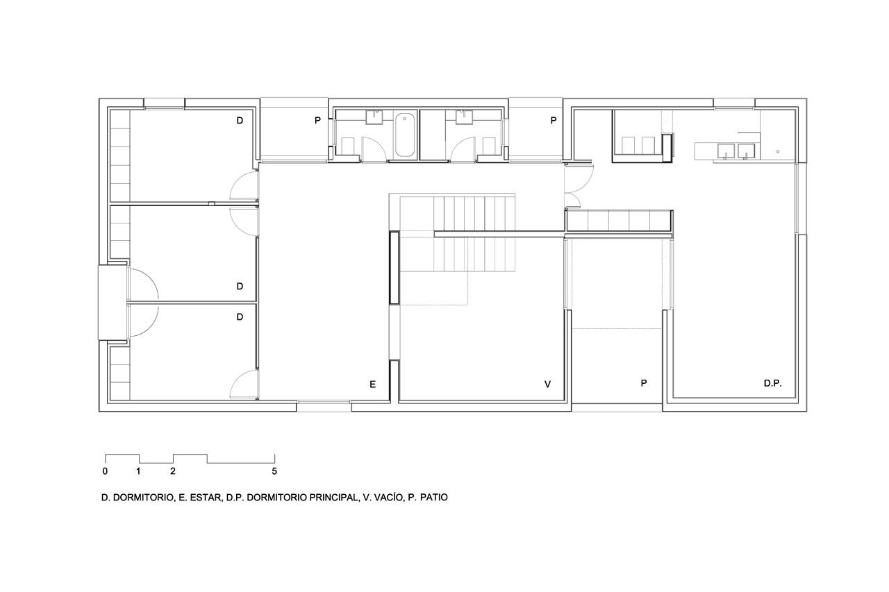
Bojaus Arquitectura, House H, Las Rozas, Madrid, Spain. First floor plan
House H, Las Rozas, Madrid, Spain
Program: single-family house
Architects: Bojaus Arquitectura (Ignacio Senra and Elisa Sequeros)
Building engineer: Virginia Láinez
Structure: Israel Bartolomé
Contractor: PECSA
Area: 556 sqm
Completion: 2013
