Galleria
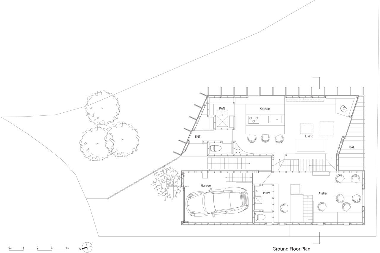
cnest_ground floor plan
Cubo Design Architect, Cnest, Oiso-cho, Kanagawa, Giappone. Pianta
Cnest, Oiso-cho, Kanagawa, Giappone
Tipologia: casa unifamiliare
Architetto: Hitoshi Saruta / CUBO design architect
Ingegneria strutturale: Kenji Nawa (NAWAKENJI-M)
Area: 338 mq
Completamento: settembre 2013
