Galleria
C:\Users\jsenez\Desktop\arboretum plan rdc Présentation2 (1)
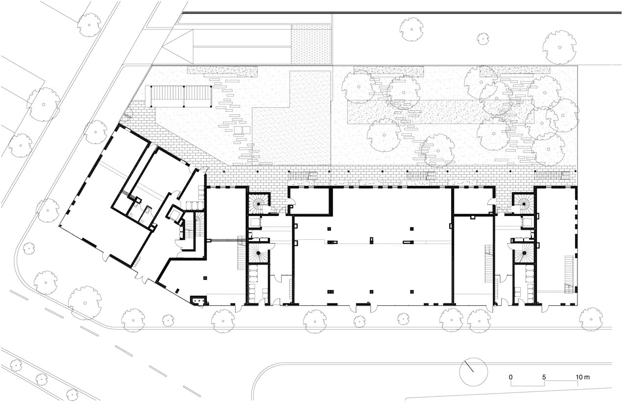
CAAU, Arboretum, Lille, Francia, pianta del piano terra
C:\Users\jsenez\Desktop\arboretum etage courant Présentation1 (1)
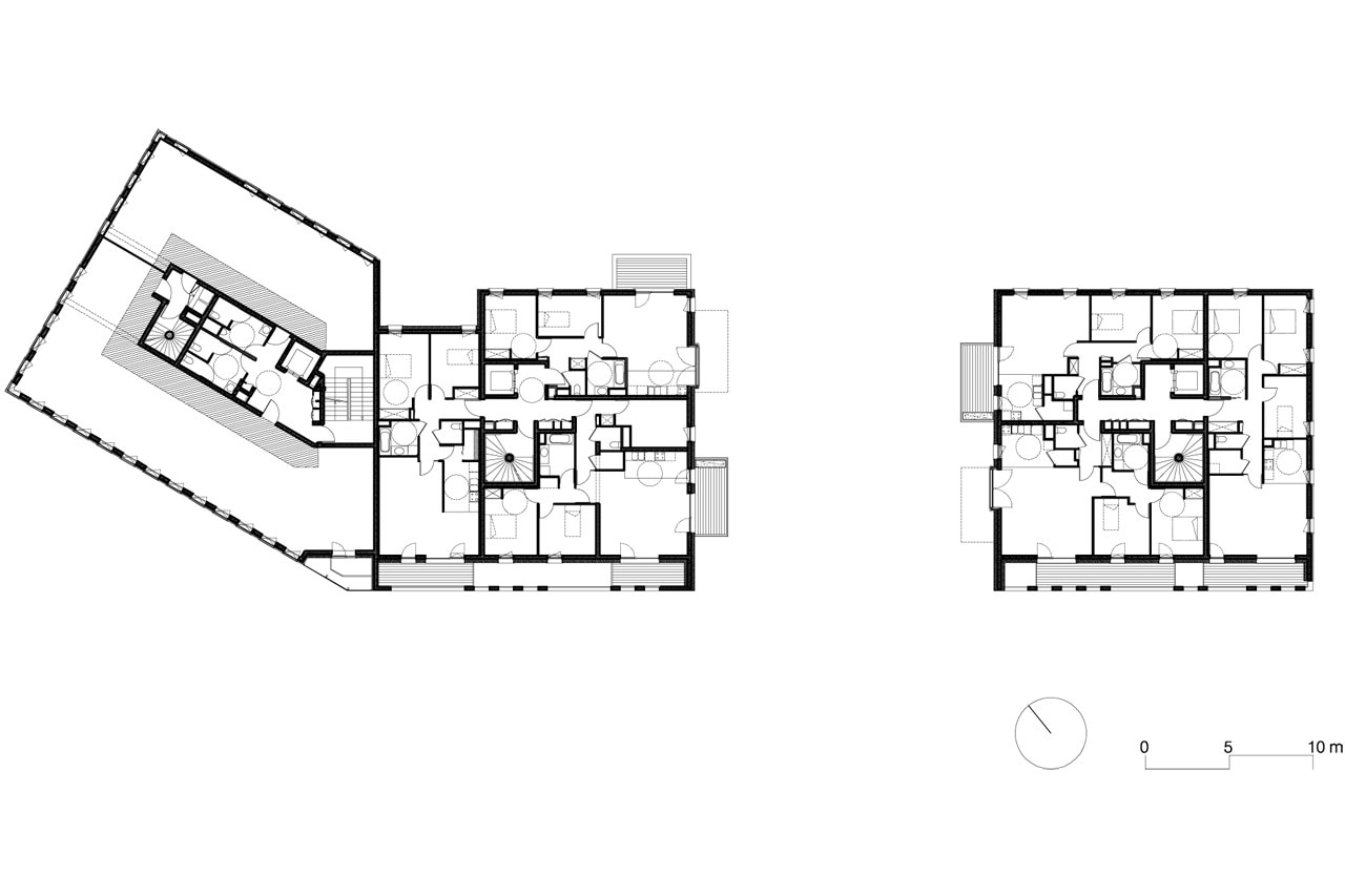
CAAU, Arboretum, Lille, Francia, piano tipo
C:\EURALILLE TEMP\EURALILLE - VALENCIENNES\2008_10_09-COLDEFY-VALEN
CAAU, Arboretum, Lille, Francia, prospetto
Arboretum, Lille, Francia
Tipologia: appartamenti e uffici
Architetti: Coldefy & Associates Architectes Urbanistes (CAAU)
Area: 9800 mq
Completamento: ottobre 2013
