View gallery
C:\Users\jsenez\Desktop\arboretum plan rdc Présentation2 (1)
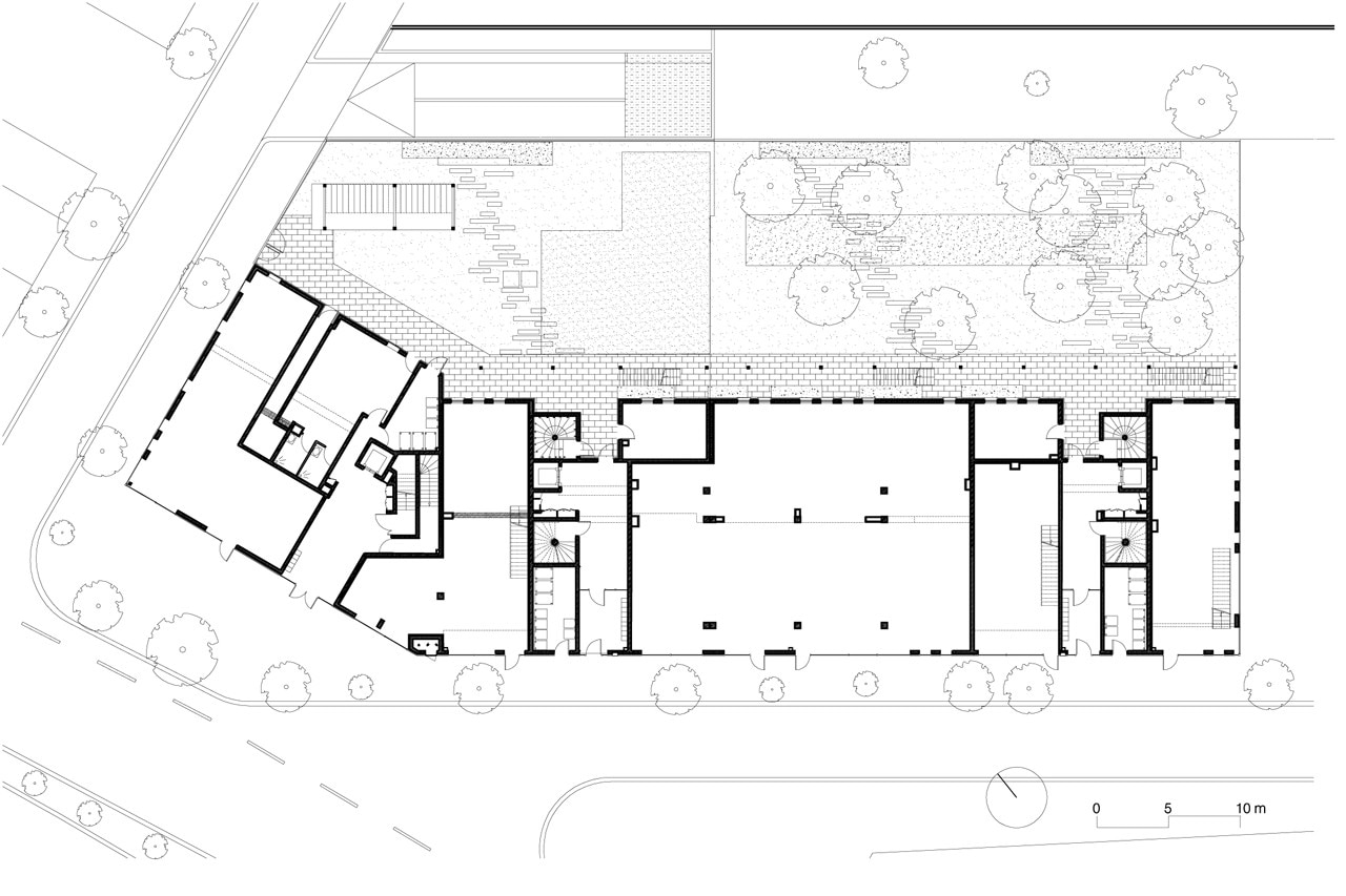
CAAU, Arboretum, Lille, France, ground floor plan
C:\Users\jsenez\Desktop\arboretum etage courant Présentation1 (1)
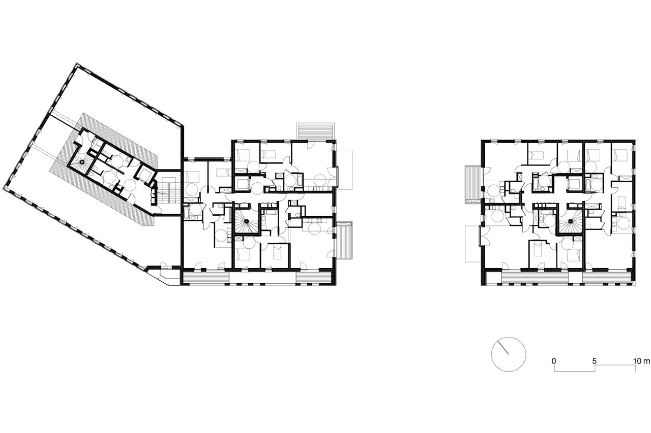
CAAU, Arboretum, Lille, France, type plan
C:\EURALILLE TEMP\EURALILLE - VALENCIENNES\2008_10_09-COLDEFY-VALEN
CAAU, Arboretum, Lille, France, facade
Arboretum, Lille, France
Program: apartments and offices
Architects: Coldefy & Associates Architectes Urbanistes (CAAU)
Area: 9800 sqm
Completion: October 2013
