KiBiSi ha progettato il sistema di passerelle superiore. Gli elementi in granito si ispirano ai dissuasori navali e sono pensati come una barriera costruttiva che impedisce l'accesso alle vetture. Il sistema è composto da una passerella sinuosa, con spazi di ritrovo sociale, con un messaggio nascosto basato sul codice Morse.
La mostra è stata progettata dallo studio olandese Kossmann.dejong. La metafora che sottende la mostra multimediale è quella di un viaggio, che inizia con l'immagine del desiderio universale di scoprire lidi lontani e di avventurarsi in esperienze marittime. La storia marittima della Danimarca, dalle origini a oggi, è raccontata attraverso un approccio attuale alle nozioni di porto, navigazione, guerra e commercio. La mostra è stata resa accessibile a un vasto pubblico attraverso l'intreccio di diversi punti di vista sul settore dei trasporti marittimi.
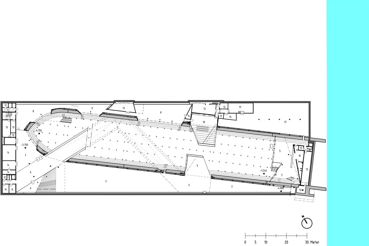
David Zahle , Partner–in–Charge di BIG, dice: “Per 5 anni abbiamo lavorato per trasformare il vecchio molo di cemento in un museo moderno, un progetto che ha richiesto una cura archeologica e grandi competenze tecniche. La vecchia struttura è al tempo stesso fragile e dura, mentre i nuovi ponti sono leggeri ed eleganti. La realizzazione di un museo sotto il livello del mare ha comportato la messa di atto di tecniche costruttive mai utilizzate prima in Danimarca. Il vecchio bacino di cemento con le sue mura spesse 1,5 m e i 2,5 m di spessore delle solette sono stati tagliati, aperti e rimontati come una moderna struttura museale. I ponti in acciaio sono stati realizzati in sezioni giganti in Cina e trasportati in Danimarca sulla più grande nave che sia mai attraccata a Helsingør. Le sezioni in acciaio pesano fino a 100 tonnellate a pezzo e sono state sollevate in loco dai due più grandi operatori con gru mobili del nord Europa”.
Sabato 5 ottobre la Regina Margrethe II ha tagliato il nastro per celebrare la grande apertura.
Danish National Maritime Museum, Helsingør, Danimarca
Programma: museo
Architetti: BIG
Partner-in-Charge: Bjarke Ingels, David Zahle
Site architect: Jeppe Ecklon
Project leader: David Zahle
Collaboratori: Alectia (client consultant), Kossmann.dejong (exhibition designers), Rambøll (structure, MEP), Freddy Madsen Ingeniører (fire consultant), KiBiSi (product design)
Team di progetto: Alina Tamosiunaite, Alysen Hiller, Ana Merino, Andy Yu , Annette Jensen, Ariel Joy Norback Wallner, Christian Alvarez, Claudio Moretti, Dennis Rasmussen, Felicia Guldberg, Gül Ertekin, Henrik Kania, Jan Magasanik, Johan Cool, John Pries Jensen, Jonas Pattern, Karsten Hammer Hansen, Kirstine Ragnhild, Malte Chloe, Marc Jay, Maria Mavriku, Masatoshi Oka, Oana Simionescu, Pablo Labra, Peter Rieff, Qianyi Lim, Rasmus Pedersen, Rasmus Rodam, Rune Hansen, Sara Sosio, Sebastian Latz, Tina Lund Højgaard, Tina Troster, Todd Bennet, Xi Chen, Xing Xiong, Xu Li
Committente: Maritime Museum Build
Area: 6,000 mq
