I tetti spioventi instaurano un dialogo con la geometria del paesaggio montano, in analogia ai tetti delle case del paese. Il dinamismo raggiunto attraverso la continuità tra le facciate e la copertura è accentuato dal colore rosso acceso, che enfatizza il progetto e mette in evidenza la costruzione, in contrasto con la vegetazione del paesaggio circostante.
Più che un edificio, la Casa das Artes vuol essere un punto di riferimento iconico, che celebra il luogo dove le persone si incontrano, così come l’arte e la cultura: uno spazio in grado di promuovere e stimolare l’attività creativa, aumentando anche la qualità di vita della popolazione.
Il progetto è stato concepito con la creazione di spazi versatili, tecnicamente adatti a diversi tipi di eventi, al fine di servire tutti i vari interessi degli utenti.
Il lotto è stato ottimizzato per favorire gli spazi paesaggistici, permettendo anche la creazione di un anfiteatro per manifestazioni all’aperto, inserito in un giardino, che è un luogo pubblico per il villaggio, con diversi ambienti e invitanti percorsi per il tempo libero.
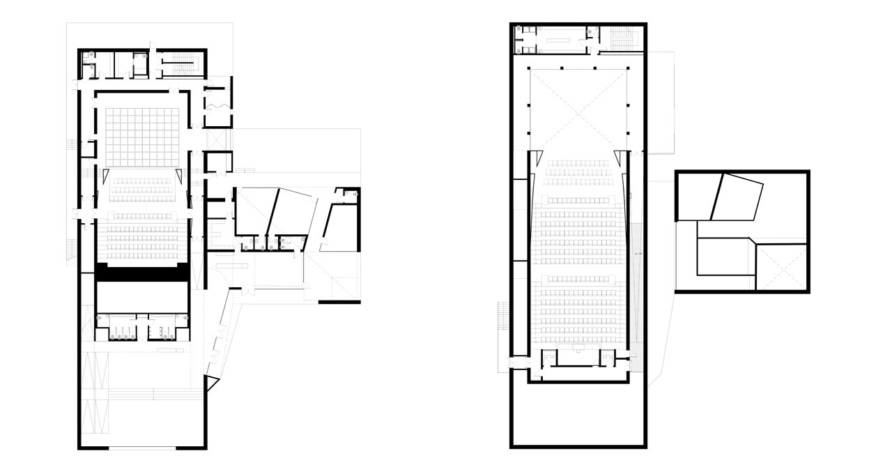
L’edificio si compone di tre volumi che riflettono i diversi tipi di utilizzo: il primo contenente il palcoscenico e la scena, il seconda comprendente il pubblico e il foyer e il terzo con una caffetteria e un futuro spazio museale, questi ultimi costituiscono un volume visivamente indipendente.
La proposta dei molteplici accessi alla costruzione vuole sottolineare la caratterizzazione di questo sito come spazio pubblico, consentendo l’accesso diretto del pubblico ai luoghi specifici come, per esempio, la zona del museo e della caffetteria a cui si può arrivare in maniera independente senza dover passare per l’auditorium.
L’ingresso principale è attraverso il foyer. Questo spazio può essere utilizzato come area espositiva e può essere diviso in due da una breve rampa di scale. Da qui partono due percorsi per l’auditorium che ha una capienza di circa 300 persone, qui si trova anche la buca motorizzata dell’orchestra e sei livelli tecnici, adeguatamente attrezzati per lo svolgimento di spettacoli di teatro, opera, concerti, conferenze o lezioni.
La caffetteria può funzionare indipendentemente dal resto dell’edificio, o anche servire come punto di ingresso per l’accesso alla sala. Questo spazio ha una terrazza coperta con un lucernario orientato a ovest, che canalizza la luce del tramonto al suo interno. La terrazza dà accesso a una sala multimediale. La facciata dell’area museale si affaccia sulla parte settentrionale del giardino dove si trova uno degli ingressi principali e l'anfiteatro all'aperto.
Casa das Artes
Miranda do Corvo, Portugal
Architetti: FAT – Future Architecture Thinking
Team di progetto: Architect Miguel Correia, Architect Cláudia Campos, Architect Sérgio Catita, Architect Patrícia de Carvalho, Architect Miguel Cabral, Architect Margarida Magro, Architect Sara Gonçalves, Architect Telmo Maia, Architect Gabriel Santos, Architect Hilário Abril, Engineer José Pico, Landscape Architect Sara Távora
Cliente: Municipality of Miranda do Corvo
Area: 2.360 sqm
Costruttore: TECNORÉM – Engenharia e Construções, S.A.
Realizzazione: 2010 / 2013
Fotografia: João Morgado
Galleria
\\IDFSERVER\Publico\trabalhos em curso\516 - Miranda do Corvo\516 - LIC\516 - REVIT\516 - EXC_LIC_(para publicacao 2013.09.16).
\\IDFSERVER\Publico\trabalhos em curso\516 - Miranda do Corvo\516 - LIC\516 - REVIT\516 - EXC_LIC_(para publicacao 2013.09.16).
\\IDFSERVER\Publico\trabalhos em curso\516 - Miranda do Corvo\516 - LIC\516 - REVIT\516 - EXC_LIC_(para publicacao 2013.09.16).
\\IDFSERVER\Publico\trabalhos em curso\516 - Miranda do Corvo\516 - LIC\516 - REVIT\516 - EXC_LIC_(para publicacao 2013.09.16).
